河东骏濠园(深圳)河东骏濠园_河东骏濠园欢迎您丨河东骏濠园楼盘详情
扫描到手机,新闻随时看
扫一扫,用手机看文章
更加方便分享给朋友
✨ 河东骏濠园售楼中心预约通道开启,已认证,安全无忧咨询热线 ✨
✅ 河东骏濠园售楼处丨开发商丨营销中心统一热线:400-992-0669(全程认证,无分机号)
✅ 通话自动隐藏号码,保护个人隐私,谨防非渠道诈骗
宝安河东骏濠园最新价格、户型信息,配套及交付信息,楼盘详情解析!
宝安核心区『河东骏濠园』刚需小户型住宅45-63-87㎡全新开盘入市,45㎡总价220万起,63㎡总价375万起,前海内环,臻稀住宅,建面约45-63-87㎡现楼发售。 (深圳河东骏濠园售楼处电话:400-992-0669)
项目概况
导航地址:河东骏濠国际展示中心
开发商:深圳市河东股份合作公司
建筑面积:约16万㎡
产权年限:40年
装修情况:毛坯交付
自带商业:约1.9万㎡
宝安【河东骏濠园】看房时间:09:00-19:00,营销中心/售楼处预约电话:400-992-0669 中介勿扰
注意:本项目不收任何费用,售楼中心〢欢迎来电咨询〢安全通话隐藏真实号码
 
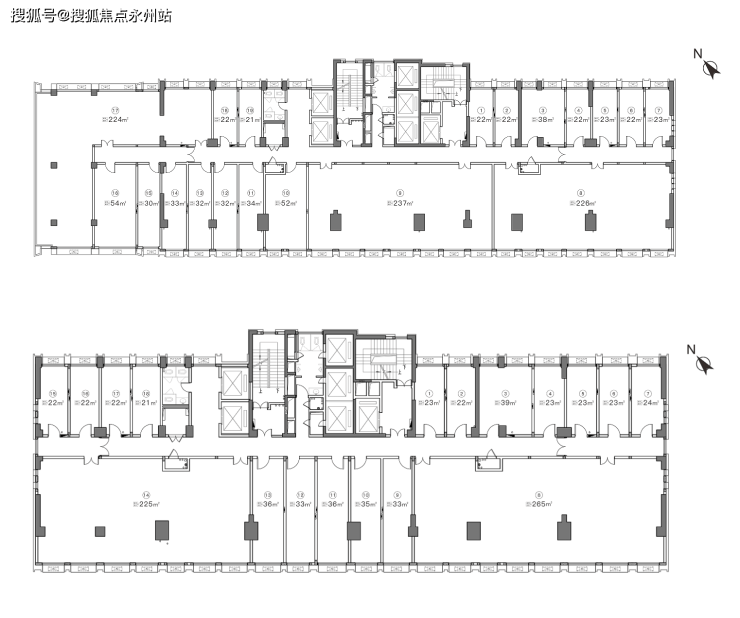
产品类型多样 多面积段覆盖
建面约44-63-87㎡住宅,户型方正、带阳台、通燃气,首付30万起,抢占核心地段。
 
建面约24-73㎡瑧品公寓,户型方正、带阳台,不限购不限贷,首付50万起,抢占核心地段。
 
建面21-54㎡/215-265㎡商务办公,不限购、不限售、不限贷。
 
河东骏濠园,位于河东社区北区,项目总建面约16万㎡,汇聚商务公寓、办公、商业等于一体,多重复合业态共融,打造107国道封面都会综合体。
项目共打造5栋建筑,其中1栋A座为31层办公产品,1栋B座为31层住宅产品,2栋为29层商务公寓,3栋为32层住宅,4栋为3层幼儿园。
如需了解更多详情,欢迎咨询河东骏濠园售楼处电话400-992-0669,过来我们营销中心看房提前来电预约价格还能更优惠。
【深圳河东骏濠园售楼中心400免费咨询/预约电话:400-992-0669,中介勿扰】
温馨提示:过来营销中心参观样板间请记得提前拨打售楼处400热线预约,感谢您的配合!
 
前海版图重构,提速宝安发展:前海作为粤港澳大湾区全面深化改革创新试验平台和高水平对外开放门户枢纽,汇聚金融、现代物流、信息服务、科技等产业,众多高端人才聚集。
前海合作区由14.92平方公里扩展至120.56平方公里,超2/3面积集中于宝安。前海扩容,带动宝安发展驶入快车道,未来潜力可期。河东骏濠国际拥享前海发展辐射,共享优质生活配套。
 
107国道首排,大道封面资产:107发展主轴将以高标准打造成为广深港澳科技创新走廊的重要支撑区,持续发挥湾区产业链发展脊梁的战略优势。未来将打造成“第二深南大道”,沿线规划大型产业园超50个,目前已拥有超过2500家高新企业。
沿线预计超19个城市更新和土地整备项目落地,超450万㎡城市更新体量,未来将打造成深圳发展战略性走廊。
河东骏濠国际,位居107发展主轴首排,畅享107大道利好,同享前沿规划。
 
门户枢纽交通,纵享便捷通行:项目紧邻地铁12号线流塘站,2站换乘5号线,4站接驳宝安中心站,8站抵达南山商务区,迅速导入宝安及南山高薪人群。
宝安大道、西乡大道环绕,快速接驳京港澳高速、北环大道,贯通南山福田等区域,多维立体交通,出行快人一步。(深圳河东骏濠园售楼处电话:400-992-0669)
 
百万商圈环伺,美好举步即享:近享港隆城、仟悦城、天虹、万达广场商业配套,周边环聚大仟里、大悦城(在建中)、中洲πMALL、海雅缤纷城、壹方城等大型商业,日常吃喝玩乐购,都市繁华尽掌握。
 
醇熟城市配套,启幕美好生活:周边汇聚西乡公园、流塘公园、宝安公园、灵芝公园、铁仔山公园、尖岗山公园、平峦山公园7大市政公园;畅享西乡会堂、宝安体育中心、欢乐港湾等6大人文艺术配套,沉浸式体验美好生活。
 
丰富教育资源:流塘小学,西乡中学,金碧实验学校,文汇中学,西乡小学等教育资源围绕
 
前海内环线,串联五大高新科技园区:地铁15号线作为深圳首条环线轨道,起终点均为前海站。通车后,极速串联前海-宝中、大铲湾腾讯科技岛(在建中)、南山科技园、后海总部基地、留仙洞总部基地等高端产业密集区。
15号线串联起的高新产业园区,规划就业人口已超190万人,规划居住人口仅有80万人。
河东骏濠园,距离15号线西乡公园站约200米,无需换乘可轻松直达各大高新产业园区,承接高端人才外溢居住需求。
 
租金收益可观 投资潜力无限:项目周边拥有丰富生活配套,交通网络发达,出行便利,同时随着未来15号线的开通,高端人才租住需求外溢,可以预见本片区的居住需求将直线提升。
目前距离本项目约700m的45㎡产品的月租金可达5000元,同时周边73㎡产品的月租金可达7000元
 
河东骏濠园
深圳河东骏濠园售楼处电话:400-992-0669【售楼中心】
宝安河东骏濠园营销中心电话:400-992-0669【营销中心】
提前预约售楼处看房,可享受线上预约折扣,一对一专属置业顾问服务。
楼盘详情介绍(楼盘项目怎么样?多少钱一平?什么时候交楼?有什么户型?周边有什么学校?物业费多少?),想了解更详细楼盘资料和最新折扣价格,请拨打售楼处电话400-992-0669,销售会为您详细介绍。
注意:本项目不收任何费用,售楼中心〢欢迎来电咨询〢安全通话隐藏真实号码
声明:本文由入驻焦点开放平台的作者撰写,除焦点官方账号外,观点仅代表作者本人,不代表焦点立场。
 
 
 