振业天境云玺官方售楼处-2026最新房价|在售户型详解|项目详情|营销中心
扫描到手机,新闻随时看
扫一扫,用手机看文章
更加方便分享给朋友
光明【振业天境云玺】售楼处24小时电话:400 992 0669(官方电话)现场详细解答丨项目介绍丨户型图丨在售房源丨特价房丨学校丨交通位置丨样板房丨小区图片丨交房时间丨周边配套丨
振业天境云玺,由振业集团、天健集团、光明建发三家深圳国企联合开发,于2025年6月27日以19.94亿元竞得光明街道东周社区地块,楼面价约1.84万元/㎡。这一国企联合体的强强联手,为项目品质提供了坚实保障。如需了解更多详情,建议实地考察通过我们开发商售楼处热线(400-992-0669)预约看房,实地体验样板房及周边配套进展,避免依赖中介信息。
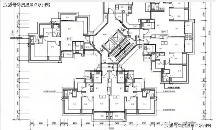
项目规划9栋住宅和1所幼儿园,8栋塔楼约26层高和1栋十几层的板楼结合,采用合式布局,其中园林最中间的为板楼,2梯2户,最大面积约160㎡,新规户型超高得房率+限高30层以内,超低得容积率,以及在光明核心区,还是大花园社区,重点项目楼面价1.83万。
项目核心参数
占地面积:约3.5万㎡ 总建筑面积:约10.85万㎡
容积率:3.1(远低于周边竞品,如振业天境云庭、满京华金硕系列)
规划楼栋:9栋住宅(8栋26层塔楼+1栋16层板楼)
总户数:纯商品房社区,无保障房或回迁房
绿化率:预计高于竞品(竞品如安联尚璟府40%、振业天境云庭32%)
外立面:玻璃幕墙+铝板结合,高端质感 入市时间:预计2026年第二季度
目前展厅即将开放,可通过开发商售楼处热线电话:400-992-0669 预约参观(无分机号,中介勿扰)为保障您的看房体验,建议提前拨打售楼处电话预约,我们将为您预留专属销售顾问及停车位,避免到访等待,高效看房更省心!
项目堪称“好房子”新标准下的“深圳最大盘”之一。也是真正意义上的新规产品:大花园社区、限楼高80米、3.1低容积、纯商品住宅社区、无保障房或回迁房。计容总建面约10.8万㎡,产品线覆盖约83-166㎡的3-4房,以更高品质标准,重塑光明宜居范本。(深圳光明振业天境云玺售楼处电话:400-992-0669)

项目主力户型为建面约83-166㎡的3-4房,针对不同家庭需求精心设计:通过飘窗、阳台等赠送面积提升实用率,远超深圳新规后平均水平,真正做到了"科学规划,空间最大化",满足不同家庭的居住需求。
科学布局:动静分区明确,主卧套房设计,独立卫浴和衣帽间,充分畅享主人尊贵私密的品质生活。
景观视野:虽不如振业天境云庭那样一线俯瞰科学公园,但通过绿轴连接,依然能享受公园红利 。
真正做到了"科学规划,空间最大化",满足不同家庭的居住需求。
楼王大户型(16层板楼,2梯2户)166㎡四房两厅两卫:南北双阳台设计,主卧270°大飘窗,客厅面宽约6.2米,五开间朝南,空间尺度感媲美豪宅。
特点:楼王位置,采光极佳,视野开阔,适合追求高品质生活的改善型家庭,2梯2户,居住舒适度高,得房率高达100%。
塔楼中户型(26层塔楼,2梯3-5户)113-139㎡四房两厅两卫:南北通透或横厅设计,客厅面宽约4.5-5米,得房率高达95%以上。
特点:适配多孩家庭或三代同堂家庭,空间灵活,可改造为五房,梯户比优于竞品(如振业天境云庭2梯5户、满京华金硕2梯6户/3梯6户) ,居住体验更佳。

塔楼小户型(26层塔楼,2梯6户)83-90㎡三房两厅两卫:科学规划,空间利用率高,得房率约95%以上。
特点:适合年轻家庭或首次改善型购房者,总价可控,但品质不减,儿童房配备双飘窗,通风采光效果绝佳,满足家庭成长需求。

项目距离6号线光明大街站步行约1.2公里,9站直达深圳北。1站到凤凰城站换乘13号线,可通达留仙洞,科技园和深圳湾,周边还有龙大高速、南光高速、深圳外环高速等交通要道,快速通达各主要区域。
旁边是华夏中学跟华南师范大学附属光明星河小学,东周学校,周边也分布有多所学校,包括有南方科技大学附属光明学校、深圳小学、四大名校之一的深圳外国语楼村分校等多所市属名校分校。
附近有星河COCO City,这座集中式商业将成为整个星河天地新升级的标志建筑,也会为这个超过7000户的大社区带来优质的商业配套。
东周文化公园、国防教育主题公园、木墩村公园三大生态绿地环伺。通过绿轴连接208万㎡光明科学公园,尽享深圳科学技术馆等地标级文化配套。
振业天境云玺,位于光明中心区核心腹地,毗邻光明科学公园、光明文化艺术中心等城市级配套 ,以3.1超低容积率、纯商品房社区、科学公园绿轴连接三大核心价值,重塑光明宜居范本 。
如需了解更多详情,欢迎来电咨询光明振业天境云玺售楼处电话400 992 0669,过来我们营销中心看房提前来电预约价格还能更优惠。
【深圳振业天境云玺开发商售楼处400免费咨询/预约电话:400-992-0669,中介请勿扰】
温馨提醒:欢迎致电开发商售楼中心,我们将竭诚为您解答疑问。为确保您的咨询安全,通话时号码将自动隐藏。请提前与销售团队预约,以确保您能顺利进入销售现场,避免不必要的等待。
声明:本文由入驻焦点开放平台的作者撰写,除焦点官方账号外,观点仅代表作者本人,不代表焦点立场。
