深业世纪山谷(售楼处)首页网站-深圳深业世纪山谷营销中心-深业世纪山谷欢迎您-楼盘详情-最新价格-户型图-容积率@售楼处
扫描到手机,新闻随时看
扫一扫,用手机看文章
更加方便分享给朋友
深业世纪山谷位于南山区沙河东路218号,占地面积约4.2万㎡,总建筑面积约38.9万㎡,是集住宅、公寓、酒店、商业和办公等多种业态于一体的城市综合体项目。_Vip Tel:400-992-0669 中介勿扰
项目位于大沙河生态长廊之上,西临约200万㎡果岭名商高尔夫球场,推窗可享一线果岭生态景观。而且南向可以俯瞰深圳湾海景,以及地标建筑春笋和跨海大桥,把“名片级”景观尽收眼底。
目前片区能够同时拥有一线高尔夫果岭景观+深圳湾海景的宜居新房,真的是少之又少。
项目周边还有大沙河公园、华侨城湿地公园、燕晗山郊野公园、深圳湾公园等四大公园环绕,片区本身可以说是深圳绿视率最高的区域。
在深圳这样寸土寸金的城市里,繁华的都市街景不难找,在城市核心地段的自然盛景才最为稀缺。
项目整体分两期开发建设,一期东地块包含1栋酒店+商务公寓、1栋保障房、2栋包含一、二单元的住宅;西地块包含2栋高约250米的超高层住宅,另有1栋约50层高的商务公寓。该项目二期将规划1栋住宅建筑,地上69层地下3层,建筑高度超过247米。
期共两栋:分两座和ab单元,其中,1栋A座42层,结构高度149.5米高;1栋B座28层92.5米高;2栋1单元41层,结构高度137.65米高;2栋2单元41层,结构高度137.65米高。

二期由一栋4座组成,其中,3栋A座69层,结构高度243.55米高(装饰高度252米);3栋B座69层,结构高度243.55米高装饰高度252米)未来将成为南山最高的住宅建筑!;3栋C座50层,结构高度172.10米高;3栋D座4层16.9米高。
深业世纪山谷_售楼处_Vip Tel:400-992-0669 中介勿扰
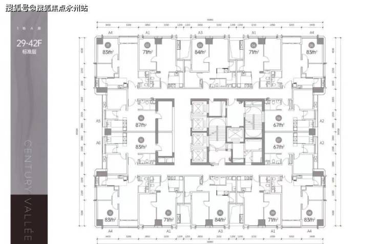
『深业世纪山谷』公寓建面约67-87㎡湾岸资产,现房带精装
『深业世纪山谷』二期131-190㎡ 大平层产品
建面约 131㎡3.7米超大开间+双阳台设计
此户型为3.3m 层高经典竖厅双套房设计,主卧 270°大空间宽视野,可享首排高尔夫景观,客厅/主卧景观视野俯瞰双高尔夫一线果岭景观,在华侨城片区为绿视率最高产品。
景观面上,拥有3.7m 开间、生活双阳台,且所有功能空间无任何暗空间(卧室/卫生间/厨房全名可采光)
建面约 153 ㎡4.1米开间+7.1米客餐厅
此户型为坐北朝南,3.3m 层高经典竖厅 3 房 2 卫设计,主卧步入式鞋帽间;三面宽南向(客厅/主卧/次卧),景观视野俯瞰深圳湾海景。
所有功能空间无任何暗空间(卧室/卫生间/厨房全名可采光),景观面上,拥有4.1m 开间尺寸、生活双阳台,优于市面 95%以上公寓项目,进深 达到了7.1m大尺度客餐厅。
建面约 190 ㎡ 3.3米层高+7.3米生活双阳台
此户型为南北通透端头位,仅 45 套 拥有3.3m层高 并且为8.8m 大横厅设计。
奢阔 3 房两卫主卧 270°大空间设计,步入式鞋帽间,卫浴,景观(7.3m)、生活双阳台,俯瞰深湾湾景观。
【深业世纪山谷】建筑面积约240-280-380㎡的3-5房户型
约240㎡3+1房3卫(3栋AB座A户型)横厅格局,阔绰3房+1保姆间,厨房带1个生活阳台,户型设计非常奢侈,但最小次卧在这户型里显得略小,西北朝向。
约280㎡3+2房4卫(3栋AB座B户型)横厅格局,阔绰3房+1小书房+1保姆间,厨房带1个生活阳台,户型设计非常奢侈,西南朝向。
约380㎡4+1房4卫(3栋AB座C户型)小区里最大的户型,豪华四梯设计,横厅格局,三面采光,景观无敌,厨房带1个生活阳台,双景观阳台设计,只做了4+1房,户型设计非常奢侈,西朝向。
『深业世纪山谷』所享受的配套资源均为深圳最顶级的配套。
深圳万象天地位于深圳市南山区,是深圳人文综合体华润城的商业中心,毗邻深圳高新科技园,南临深南大道, 东靠沙河西路,与地铁 1 号线高新园站无缝接驳。
深圳湾睿印RAIL IN商场位于深圳湾超级总部基地这一世界级天际线所在的“众星云集”的区域,近10万平方米的商业项目,由深圳地铁与万科集团联合打造,是深圳湾超级总部基地规模最大TOD综合体SIC的商业核心部分。
除此之外,项目周边3公里范围内还有益田假日广场、深圳湾万象城、欢乐谷、世界之窗、名商高尔夫球会、以及欢乐海岸顶级市政配套,此地段,无可复制。
项目西侧即为名商高尔夫球会,占地750亩,拥有十八洞的球场。
也是豪华会员度假套房、健身中心、中西美食餐厅、休息室、浴室、专卖店、卡拉OK、桌球室、酒吧等于一体的高端休闲场所,圈层身份的象征,即便不去打球,依然可享永久森林景观。_Vip Tel:400-992-0669 中介勿扰

项目临近地铁1号线【白石洲站】,1站到达【高新园】,可换乘2/7/9/11四条轨道线路
距离地铁1号线白石洲站约500米步行约7分钟、规划中的20号线【白石洲站】,规划中的29号线【白石洲北站】就在楼下。
陆路:项目毗邻【沙河东路】,与深圳湾总部基地紧密相连。周边有【深南大道】、【滨海大道】、【北环大道】多条城市交通主轴,可直抵前海、宝中、福田、罗湖等深圳其他城市核心区。
紧邻【沙河东路】,自北向南串联起【京港澳高速】、【北环大道】、【深南大道】、【滨海大道】,纵向由【沙河西路】、【科苑路】共同构成四横三纵的一体快速路网。
项目位于南山区华侨城千万豪宅片区,沙河街道沙河街以西,沙河东路以东。95万㎡大沙河生态长廊、200万㎡沙河+名商高尔夫生态、华侨城湿地公园、深圳湾滨海长廊,这些深圳最顶级的景观生态资源都在它的腹地之上。最重要的是,目前深业世纪山谷项目是深湾中轴唯一在售居住型产品,相当稀缺。
看完以上介绍,如需了解更多关于我们深圳南山深业世纪山楼盘最新消息、剩余楼层、房价优惠活动、户型结构等情况,欢迎来电咨询我们润宏城开发商售楼处咨询/预约电话:400-992-0669 (已认证) 中介请勿扰。
声明:本文由入驻焦点开放平台的作者撰写,除焦点官方账号外,观点仅代表作者本人,不代表焦点立场。
