深圳中建鹏宸云筑-中建鹏宸云筑楼盘详情-房价-在售户型-容积率-小区环境
扫描到手机,新闻随时看
扫一扫,用手机看文章
更加方便分享给朋友
龙华【中建鹏宸云筑】售楼处24小时电话:400 992 0669(开发商直销)现场详细解答丨项目介绍丨户型图丨在售房源丨特价房丨学校丨交通位置丨样板房丨小区图片丨交房时间丨周边配套丨
龙华的日光红盘—中建鹏宸云筑西区已取证,备案均价6.12万/㎡,开盘93折,折后单价5.1万/㎡起(带装修),8月31日(周日)盛大开盘!
项目首推8栋,也是西区景观最好的一栋,总高32层,154套房源,2T5户,户型面积为102-118-139m²3-4房!户型分布和东区的6栋基本一致,预计27年10月份精装交付。
中建鹏宸云筑售楼处_Vip Tel:400-992-0669 中介勿扰,预约看房享受专属优惠大礼包(赠送物业管理费、赠送家电大礼包、额外购房补贴等)可享折上折优惠
这次推出的西区地块8栋,整体户型结构跟层数都是跟东地块的6栋一模一样的,只是西地块的建筑面积低了不少,尺寸方面也会有一些差距。
这次开盘也给出了9.3折的优惠,折后均价5.69万/㎡,折后单价5.13-6.19万/㎡,总价在526-863万/套,另外一套173平的户型折后总价1115万。
102㎡的4房2厅2卫,折后总价526-603万/套,单价约5.14-5.92万/㎡。
118㎡的4房2厅2卫,折后总价603-667万/套,单价约5.13-5.67万/㎡。
139㎡的4房2厅2卫,折后总价755-863万/套,单价5.42-6.19万/㎡。
历史加推回顾
2024年12月6日取证:首推3/5栋368套房源,面积有81平的3房2卫,91-105-124平的4房2卫,备案均价6.01万/㎡,当时开盘打出了88折优惠,折后均价5.32万/㎡,单价4.72-5.8万/㎡,总价在398-673万/套,首开即日光,也是2024年深圳第5个日光盘。
2025年3月21日取证:加推6栋153套房源,面积有104-121-148平的4房2卫,备案均价6.12万/㎡,当时开盘打出了93折优惠,折后均价5.69万/㎡,折后单价5.07-6.1万/㎡,总价在530-905万/套,开盘劲销98%,至今仅剩1套148平户型在售。
2025年4月25日取证:加推1栋250套房源,面积有81平的3房2卫,91-107-126平的4房2卫,备案均价6.13万/㎡,当时开盘打出了9折优惠,折后均价5.51万/㎡,折后单价5-5.84万/㎡,总价在416-736万/套,开盘劲销85%,至今仅剩少量在售。
2025年5月29日取证:加推2栋244套房源,面积有81平的3房2卫,91-107-126平的4房2卫,备案均价6.13万/m²,当时开盘打出了91折优惠,折后均价5.54万/m²,折后单价5-5.84万/m²,总价在425-736万/套。至今还有约30套在售。

中建鹏宸云筑位于龙华民治街道梅林关华南数字谷旁,是由中建壹品、湖北文旅及深圳华展置业联合开发的纯商品房社区,无保障房和回迁房。
项目总建面约31万㎡,容积率5.0,绿化率40%,分东西两区开发,共10栋超高层住宅,总户数2092户,车位比1:1.03,精装交付时间为2027年6月至10月。
8栋楼王:总高32层,2梯5户,共154套,户型为102-118-139㎡三至四房,其中102㎡占91套,118㎡和 139㎡各31套。
景观优势:西区8栋为景观楼王,中高楼层可无遮挡俯瞰民治水库和银湖山景,部分户型直面山景湖景。
8栋楼王共推出103-118-139㎡三种户型,均为纯四房设计,采用深圳建筑新规标准,综合实用率超100%。
得房率高:采用深圳建筑新规设计,综合实用率达 97%-108%,同等面积多1房。
全明设计:户户朝南(东南或西南),低区赏园林,中高区瞰湖山景。
精装标准:配备东芝全屋中央空调,柜体和榻榻米为交付标准,装修成本约3000 元 /㎡。
到访预约优惠:提前通过开发商售楼处电话预约看房(400 992 0669),可享专车接送+折上98折+额外家电礼包(限量房源先到先得)
102㎡四房两厅两卫(竖厅):
布局:四开间朝南,LDKB 一体化设计,客厅连接约 9.6㎡阳台,动静分区明确。
赠送:S 墙设冰箱卡槽,主卧与次卧带 270° 飘窗,得房率约 104.16%
优势:小户型高实用率,适合首次改善家庭,总价门槛低。
118㎡四房两厅两卫(横厅):
布局:南北通透,6.25 米阳台朝东南,玄关赠送 4.6㎡,客餐厅开间 6.35 米。
赠送:主卧与次卧带 270° 飘窗,实际得房率 107.3%。
优势:横厅设计提升空间感,适合三代同堂家庭。
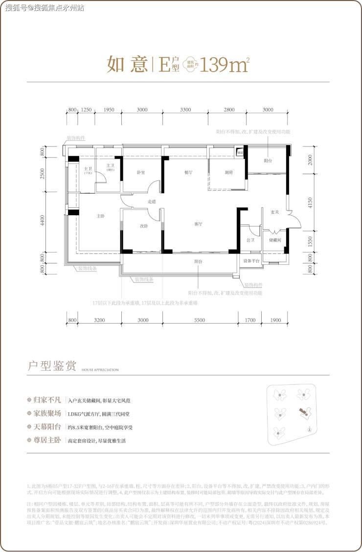
139㎡四房两厅两卫(竖厅):
布局:方厅一体化设计,客厅连接 13.6㎡观景阳台,可改五房。
赠送:玄关赠送 5.2㎡,公卫三段式分离,得房率约 104.01%。
优势:空间尺度阔绰,适合多孩家庭或改善需求。
中建鹏宸云筑,地处龙华七大重点片区之一,北站枢纽城市功能节点,千亿级百万平产业规划跃迁,产学研商住配套,形成对标深超总、腾讯企鹅岛及香蜜湖国际金融中心的四大微城市之一。
世界500强海克斯康落户华南数字谷,集聚35+龙头名企,打造湾区数智产业集群,数字产业集群度达95%,人才流、资金流、信息流、技术流汇聚融合,驱动板块加速蜕变,深圳发展中轴,华南数字超级总部基地、星河world总部基地、坂雪岗科技城、北站产融结合示范区、梅彩新一代信息科技,连成深圳中轴含金量置顶的价值金线。(深圳龙华中建鹏宸云筑售楼处电话:400-992-0669)
项目距离10号线南坑站C出口直线距离约600米,距离光雅站约850米。周边还有5号线民治站,6号线白石龙站,及规划中的22号线,地铁通勤便利。项目周边道路有珠三角环线高速、五和大道、民乐路等,可快速到达深圳各核心区域。
项目自带约3500㎡底商,西侧紧邻星河World商业集群,涵盖办公、零售、餐饮等多业态。此外,深圳北站商圈、坂田万科广场等均在10分钟车程内,形成多层级商业网络。
周边3公里内汇聚超50万㎡商业体量:北侧步行可达8号仓奥特莱斯,直线距离内布局星河COCO Park、COCO City、红山6979、龙华印象汇等大型综合体,满足高端购物与日常消费。

项目自带1所12班制幼儿园,北侧规划有一所广东省一级学校建设标准的九年一贯制72班学校,建成后将提供小学学位2160个,初中学位1200个,也是由中建三局代建,据传是红山中学附属学校进驻,不过暂未明确公布,根据龙华教育局2025年最新的学区划分,小初学区都是划分在华南实验学校。
生态环境方面,坐拥塘朗山、银湖山两大山脉的自然资源,近享民治水库、民乐水库、雅宝水库、南坑水库四大湖景,超核“未来之眸”绿芯公园、民治体育公园、红木山郊野公园等九大生态公园环伺,深圳城芯难得森态胜景,满目盛景尽斑斓。
如需了解更多详情,欢迎咨询龙华中建鹏宸云筑售楼处电话400 992 0669,过来我们营销中心看房提前来电预约价格还能更优惠。
【深圳中建鹏宸云筑开发商售楼处400免费咨询/预约电话:400-992-0669,中介请勿扰】
温馨提醒:欢迎致电开发商售楼中心,我们将竭诚为您解答疑问。为确保您的咨询安全,通话时号码将自动隐藏。请提前与销售团队预约,以确保您能顺利进入销售现场,避免不必要的等待。
声明:本文由入驻焦点开放平台的作者撰写,除焦点官方账号外,观点仅代表作者本人,不代表焦点立场。
