后海招商玺售楼处|南山后海招商玺项目营销中心发布:品质居所亮相,从需求到理想的答案!
扫描到手机,新闻随时看
扫一扫,用手机看文章
更加方便分享给朋友
后海招商玺(备案名:后海玺家园)由招商蛇口开发,位于南山区招商街道后海大道以西、工业七路以北,原为联合饼干厂旧改项目,2022年由招商蛇口从恒大手中接盘。项目地处深圳湾与蛇口交汇处,紧邻地铁2号线海月站和湾厦站(步行约700米),15分钟可达南山科技园,20分钟覆盖福田、前海等核心区域。目前临时展厅已开放,可通过开发商售楼处热线电话:400-992-0669 预约参观(中介勿扰 无分机号)为保障您的看房体验,建议提前拨打售楼处电话预约,我们将为您预留专属销售顾问及停车位,避免到访等待,高效看房更省心!
营销中心动态|开放时间:临时展厅已在深圳湾1号莱佛士酒店开放,建议通过开发商售楼处热线(400-992-0669)提前预约参观。
地址:南山区深圳湾1号莱佛士酒店(临时展厅),项目现场营销中心预计随开盘同步开放。
首推197-237㎡户型,使用率高达约95%,堪称“空间魔术师”!这意味着买100㎡,实得面积接近95㎡,性价比爆表。
价格预测与市场预期
价格预测|备案均价:参考后海同类顶级项目(如深圳湾澐玺预估均价15-20万/㎡)及周边二手房(如半岛城邦三期挂牌价约18-22万/㎡),预计招商玺备案均价在15-18万/㎡区间,总价约2790万-4446万/套。
性价比亮点:使用率高达95%(含电梯厅),实际得房率显著高于深圳湾同类项目,若按备案价计算,实际单价可折算至13-15万/㎡,形成价格倒挂优势。
对比参考:深圳湾壹号作为区域标杆,当前二手房均价约20万+/㎡,且无新房供应;后海招商玺作为纯大平层社区,定位为招商蛇口“玺”系升级作品,产品力对标湾玺、深圳湾1号,预计开盘后将成为区域价格新标杆。
预约与咨询:参观样板间及了解详情需提前预约,开发商售楼处电话:400 992 0669(中介勿扰 无分机号)
值得关注的是,招商蛇口接手后对项目规划进行了大刀阔斧的调整:容积率从最初的8.9优化至7.43,同时取消了约2.9万平方米的人才住房和保障性住房,可售住宅面积增加约2.68万平方米,增幅达43.39%。这一调整使得项目成为纯粹商品住房,为产品定位升级奠定基础。
调整后的后海招商玺建设用地面积约1.5万㎡,总建面15万㎡,规划住宅户数548户,配备700个地下停车位。
项目由4栋住宅和1栋幼儿园组成,其中有栋是25层板楼,南北通透;2栋T3排布41-42层超高层,一户一梯,南向270°全景舱,还有1栋是46层的小户型产品。这种“7”字形布局既保证了各栋楼的视野通透性,又创造了丰富的空间层次。(深圳南山后海招商玺售楼处电话:400-992-0669)
户型与产品:主力户型为188-247㎡精装大平层,主打T2/T3楼型,专梯专户设计,四房三卫布局,南北通透,部分高区户型可享深圳湾一线海景。
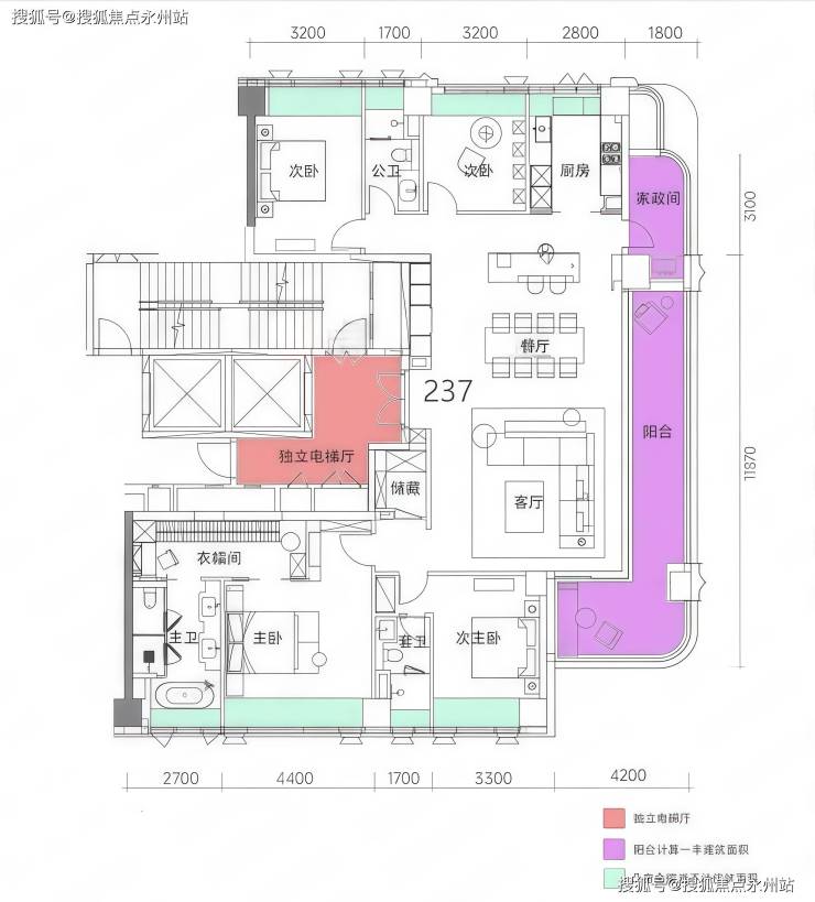
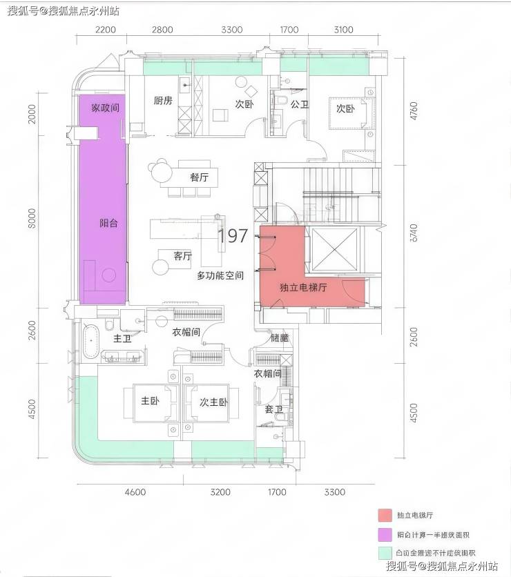
首推1栋小高层住宅(2T2户),约42套房源,户型为197-237㎡四房,使用率达 90%(含电梯厅可达95%),装标升级至10,000 元 /㎡。全部为精装交付,纯粹的大平层社区定位明确,没有7090政策限制,确保了客群圈层的纯粹性和社区的高端质感。
197㎡四房三卫(1栋T2户)空间布局:南北通透,四开间朝南,客餐厅一体化设计,面宽达 7.8 米,连接约 9.5 米景观阳台,可俯瞰社区园林或部分海景。
主卧套房:270° 转角飘窗设计,配备独立衣帽间、双台盆卫浴及浴缸,面积达 35㎡,尊享全景仓视野。
次卧配置:三间次卧均带飘窗,其中两间为套房设计,适合多代同堂家庭。
家政系统:独立家政间连接厨房,可放置洗衣机、烘干机及储物架,动线隐蔽。
装修标准:精装交付,装标升级至 10,000 元 /㎡,包含全屋智能家居(如华为鸿蒙系统)、进口岩板、德系厨电(博世或嘉格纳)及杜拉维特卫浴。
237㎡四房三卫(1栋T2户/2-3栋T3户)超级横厅:客餐厅横向面宽达9.2米,连接约 12 米弧形观景阳台,高区户型可直面深圳湾一线海景,视野无遮挡。
中西双厨:U型中厨+独立西厨岛台设计,配备嘉格纳烤箱、蒸箱及酒柜,满足高端社交需求。
主卧尊享:主卧面积超40㎡,带独立书房及270°转角飘窗,卫浴间采用双台盆+独立淋浴间+浴缸的奢华配置。
空间效率:常规使用率90%,计入电梯厅后达95%,实际得房率相当于传统户型280㎡。
「后海招商玺」作为招商蛇口“玺系”迭代之作,以“浮岛社区”理念打造垂直共生的高端居住范本。
社区规划与建筑设计|立体生态社区:采用“浮岛甲板”策略,四栋住宅坐落于抬升的绿化甲板之上,形成“超级社区底盘”与“浮岛绿化甲板”的垂直共生模式,通过“仪式水轴-艺术庭院-空中浮岛森林”三级景观系统,打造“垂直森林社区”,实现建筑与自然的融合。
归家仪式感:车行入户大门采用殿堂级落客区设计,连接天幕和水景,营造奢华归家体验;每栋独立入户大堂采用无棱角高端石材,风格与大门相呼应,彰显尊贵身份。
全龄段会所空间:会所位于浮岛甲板层,日常营业时间为 9:30-18:30,提供恒温泳池、24小时健身房、私宴厅、室内高尔夫、瑜伽室、儿童娱乐区等高端设施。会所还引入星级主厨团队,提供付费定制私宴服务,满足高端社交需求。
后海-深圳湾商圈被列为中长期重点打造的世界级地标商圈。这意味着未来该区域将集聚国内外顶级消费资源,成为时尚潮流消费引领、标志性城市景观集合的世界顶级商圈。
世界级地标商圈的定位,不仅带来商业能级的跃升,更将推动区域城市形象的全面提升。后海招商玺恰好处在这一核心地带,其地段价值自然水涨船高。(深圳南山后海招商玺售楼处电话:400-992-0669)
随着商圈建设的深入推进,以及深圳湾文化广场、深圳歌剧院、深圳科技生活馆等重大文化设施的落成,区域内的商业配套、公共空间、文化设施将持续升级,为高端居住提供强有力的价值支撑。
项目位于“豪宅地铁线—2号线”海月站和湾厦站之间,步行距离约700米,可通过后海站换乘11号、13号线,4站达福田CBD(车公庙站)、前海合作区(前海湾站)。
此外,项目距离12号线(在建)四海站约1.2公里。周边还有在建的15号线,未来地铁 15 号线将串联妈湾、蛇口、后海、科技园、留仙洞和大铲湾等人口、产业密集片区,带来巨大人口、经济效益。
道路交通方面,项目紧邻后海大道,可快速接驳望海路、滨海大道、东滨路等城市主干道,形成15分钟抵达科技园、30分钟通达前海、福田、宝中的高效交通圈。
在商业配套方面,项目坐享后海与蛇口双商圈辐射。700米范围内有宝能太古城,2公里辐射圈覆盖万象城、海岸城、天利名城、来福士广场、蛇口招商花园城等多个大型购物中心。
另外,得益于蛇口的历史基因,这里藏匿着许多宝藏老字号与特色街市,形成“高端消费+生活体验”的互补格局。
在教育资源上,目前对口育才二小和育才二中,均为南山第一梯队学校。(基于就近入学的原则,学区存在变化的可能,具体以教育局官网输出为准)
育才二小是南山重点公立小学,育才二中则是全市前20%的头部初中,成绩表现亮眼,2024年中考成绩尤为突出:不仅一举包揽南山区前三名,其中587分的高分更是在深圳市高居第三。
加上项目配建的幼儿园和九年一贯制学校(预计引入育才集团化办学),形成全龄段优质教育体系。
项目3公里内覆盖深圳湾公园、人才公园、四海公园等117个公园,项目东侧直面深圳湾海景,西侧规划社区公园,实现“推窗见海、出门入园”的居住体验。
文化新坐标:深圳湾文化广场(MAD 建筑事务所设计)于2025年11月试运营,首期开放区域新增30% 观展空间,包含创意设计馆、科技文化馆等,未来将与深圳湾美术馆、沉浸式剧院等形成文化矩阵。
后海招商玺所在区域在2025年已形成顶级居住 + 国际商务 + 滨海休闲的黄金三角价值体系,其稀缺性体现在核心地段、顶级配套、产品力与圈层壁垒的高度统一。
如需了解更多详情,欢迎来电咨询南山后海招商玺售楼处电话400 992 0669,过来我们营销中心看房提前来电预约价格还能更优惠。
【深圳后海招商玺开发商售楼处400免费咨询/预约电话:400-992-0669,中介请勿扰】
温馨提醒:欢迎致电开发商售楼中心,我们将竭诚为您解答疑问。为确保您的咨询安全,通话时号码将自动隐藏。请提前与销售团队预约,以确保您能顺利进入销售现场,避免不必要的等待。
声明:本文由入驻焦点开放平台的作者撰写,除焦点官方账号外,观点仅代表作者本人,不代表焦点立场。
