新城·燕澜和鸣(深圳)新城·燕澜和鸣房价/户型图/学校位置/价格/交房/资料
扫描到手机,新闻随时看
扫一扫,用手机看文章
更加方便分享给朋友
深圳坪山【新城·燕澜和鸣花园】
新城燕澜和鸣,项目位于坪山燕子湖片区,深圳中学坪山创新学校旁,现代化住宅,500米地铁口物业,深圳价格洼地,刚需上车盘首选。新城燕澜和鸣聚焦高端服务功能的城市新客厅,规划建10栋住宅塔楼与1栋幼儿园。
【坪山新城燕澜和鸣售楼处电话: 400-992-0669,中介请勿扰】
温馨提示:本楼盘售楼部现场参观样板间采用预约制,过来之前请记得拨打开发商400电话进行预约,谢谢配合!
新城燕澜和鸣以“山水会客厅·活力新中心”为定位,具备“山水林田湖草”全要素,以“不一样的公共生活中心、新型的创新服务中心、高品质的国际生活新社区”为目标的未来城市新客厅,呼之欲出、跃然眼前。新城燕澜和鸣采用极致现代化设计,通过“公建化”立面设计手法使住宅更具冷峻,独特的公建化气质,突破传统住宅形态,体现其独特的现代时尚主义及现代精美主义。园林以燕澜和鸣为主题,打造“学于书斋,游于园林,山水之间,自由讲学”的景观氛围。
项目信息
开发商:深圳市盛讯咨询管理有限公司
物业公司:国家一级资质“新城悦”物业
占地面积:约3.7万㎡
建筑面积:约24万㎡
总栋数:11栋
物业类型:住宅
产权年限:70年
规划户数:1739户
车位数:1800个
容积率:4.52
绿化率:35%
交房时间:2024.03.30
开发商电话:4009920669
装修情况:精装
在售户型:建面78-115㎡
物业费:3.9元/㎡/月
新城燕澜和鸣项目价值分析:
坪山燕子湖片区,是坪山唯一被划入深圳十四五期间9大重点建设区域的片区,聚集三大千亿产业集群升值潜力高。

约51.6k㎡高新产业园,已聚集三大千亿产业集群:生物医药(500强赛诺菲斯德、国药等27家企业已进驻)、新能源汽车(比亚迪、开沃已进驻)、信息技术(荣耀、中芯国际、昂纳科技已进驻),同时还有6k㎡大学城助力产学研一体化。
项目交通
地铁:16号线横塘站(在建),距离项目约500米,预估2023年通车。5站换乘14号线(2022年通车)坪山围站。
高铁:高铁坪山站-深圳北站-福田站-香港西九龙站。
高速路:南坪快速三期(已通车),坪山直达福田;东部过境高速、坪盐通道(建设中,预计2022年竣工)。
项目配套
教育:深圳中学坪山创新学校,54班九年一贯制公立学校,作为深圳传统四大名校之一的深圳中学,赋能打造集开放性、实验性、示范性于一体的“未来园林式学校”,双一流师资及丰富教学经验,铺就坪山学子成长坦途。商业:益田假日世界、坪山天虹百货、泰禾中央广场。休闲:坪山体育中心、六馆一城(文化馆、图书馆、影城、演艺中心、展览馆、美术馆、书城)。医疗:萨米国际医疗中心(深圳市第四人民医院)—三级甲等综合医院;平乐骨科三级甲等专科医院,坪山妇幼保健院,南方医科大学深圳口腔医院等。生态:一河三山七公园,生态宜居。
①一河:坪山河
②三山:马峦山、燕子岭、聚龙山
③七公园:松子坑森林公园、聚龙山湿地生态园(全国最大的湿地公园)、坪山中心公园、聚龙山生态公园、燕子岭生态公园(天然氧吧)、碧岭生态农业园、金龟郊野公园。
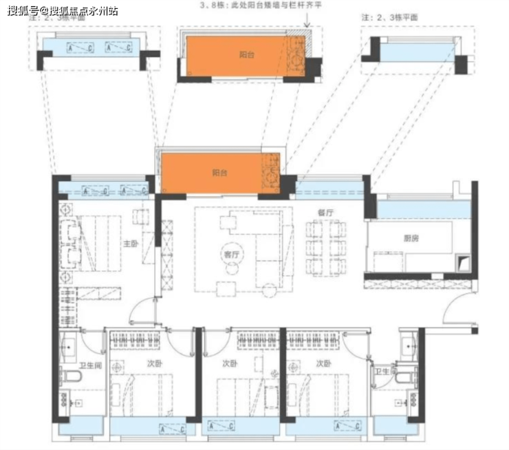
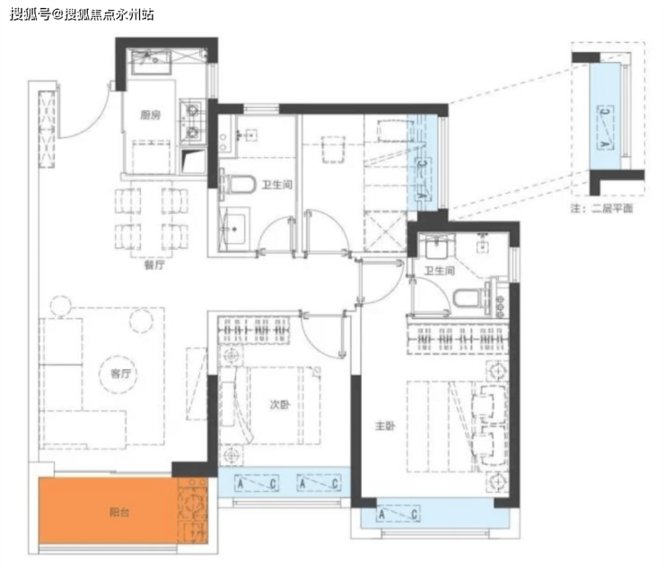
新城燕澜和鸣规划及户型
建面约78㎡户型建面约88㎡户型建面约94㎡户型建面约115㎡户型




【新城燕澜和鸣开发商售楼处电话:400 992 0669 (中介请勿扰)】
✅ 过来参观样板间,记得提前拨打售楼处电话在线预约,感谢配合!
✅ 看房提前预约可享楼盘内场优惠,安排现场销售人员一对一服务!
✅ 来电可了解楼盘最新动态、房价、户型面积、优惠折扣政策信息!
郑重提醒:本楼盘售楼处电话从未设置任何所谓的“分机号”,拨打之前请认真甄别,保护好个人隐私,谨防上当!
【免责声明】
· 本文中所提到的“新城燕澜和鸣花园”项目名称均为本项目的网络推广名。
· 本资料仅作为要约邀请,相关内容不排除因政府相关规划、规定及开发商未能控制的原因而发生变化,本公司保留对宣传资料修改的权利,敬请留意最新资料。本资料对项目或产品的介绍,旨在提供相关信息,不意味着本公司对此作出了承诺,买卖双方的权利义务以双方签订的《商品房买卖合同》及附件等协议为准。
· 本文部分图片来源于国际互联网,版权归原作者所有,如涉及版权等问题,请立即联系我们,我们会给予更改或相关处理。
声明:本文由入驻焦点开放平台的作者撰写,除焦点官方账号外,观点仅代表作者本人,不代表焦点立场。
