宏发悦见公园里(售楼中心)首页网站-宏发悦见公园里欢迎您-宏发悦见公园里楼盘详情@售楼处
扫描到手机,新闻随时看
扫一扫,用手机看文章
更加方便分享给朋友
✨ 宏发悦见公园里预约通道开启,已认证,安全无忧咨询热线 ✨
✅宏发悦见公园里售楼处丨开发商丨营销中心统一热线:400-992-0669(全程认证,无分机号)
✅ 通话自动隐藏号码,保护个人隐私,谨防非渠道诈骗
宏发悦见公园里营销中心24小时电话:400-992-0669(售楼中心接待处)项目最新动态:房价、价格、折扣、学区、学校、地铁、交通、户型图、备案价、特价房、优缺点、得房率、优惠活动、小区图片、开盘时间、交房时间、周边配套、位置、最新详情,请来电咨询我们售楼处热线:400-992-0669 中介勿扰
「悦见公园里」由宏发集团打造,位于深圳市光明区公明街道松百路与红花中路交汇处北侧,地处公明核心地段,公明街道近半地域处于99平方公里科学城范围,茅洲河北岸4平方公里直接嵌入科学城大科学装置区。大科学装置、科研机构、研究平台,顶尖科学家、高水平人才团队和高端前沿企业,将把科学的基因深深镌刻在公明,给公明的城市肌理带来质的改变。把握新一轮历史性发展机遇,在红花山下、茅洲河畔再现一个崭新的公明城。(深圳宏发悦见公园里售楼处电话:400-992-0669)

光明公明【宏发悦见公园里】于2023年7月21日取证入市,推出3栋1/2/4/5单元,共803套房源,面积有85-88㎡的3房2厅1卫,91-94-95-98-110㎡的3房2厅2卫,120㎡的4房2厅2卫户型,备案均价4.69万/㎡,备案单价4.35-5.41万/㎡,总价381-654万/套,计划于2025年6月份带精装修交房。(深圳宏发悦见公园里售楼处电话:400-992-0669)
最新消息:项目自23年7月份取证以来,历时11个月,已经销控超300套房源,整体去化率约38%,近期推出部分工抵房单位,85折的钜惠,折后均价3.99万/㎡,折后单价3.74-4.53万/㎡,总价324-553万/套。
85㎡的3房2厅1卫,折后总价324-348万/套,单价3.8-4.08万/㎡。
88㎡的3房2厅1卫,折后总价332-355万/套,单价3.79-4.04万/㎡。
91㎡的3房2厅2卫,折后总价370-383万/套,单价4.05-4.2万/㎡。
94㎡的3房2厅2卫,折后总价349-384万/套,单价3.74-4.09万/㎡。
95㎡的3房2厅2卫,折后总价384-398万/套,单价4.04-4.2万/㎡。
98㎡的3房2厅2卫,折后总价377-394万/套,单价3.85-4.04万/㎡。
110㎡的3房2厅2卫,折后总价424-459万/套,单价3.89-4.14万/㎡。
120㎡的4房2厅2卫,折后总价553万/套,单价4.53万/㎡,仅1套。
想了解更多我们项目近期动态、剩余楼层、底价信息与保留房源,请认准我们售楼处电话/预约热线:400-992-0669 中介勿扰
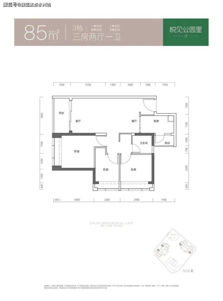
85㎡的3房2厅1卫,设计的是竖厅格局,客厅3.3米开间,LDKB一体化设计,3个卧室分别做到了3.1米/2.9米/2.3米的宽度,L型厨房带1个生活阳台,卫生间三段式分离,得房率73.72%(不含赠送),西北或东南朝向。
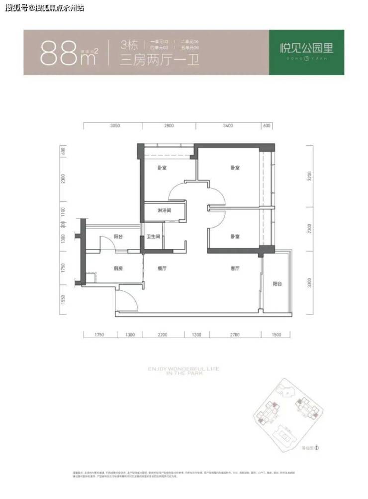
88㎡的3房2厅1卫,设计的是经典竖厅格局,客厅3.3米开间,LDKB一体化设计,动静分区,3个卧室分别做到了3.2米/2.8米/2.3米的宽度,L型厨房带1个生活阳台,公卫三段式分离,得房率73.71%(不含赠送),有西北、东北、西南或东南朝向。
91㎡的3房2厅2卫,仅3栋2单元01户型,设计的是竖厅双龙抱珠格局,客厅3.4米开间,三开间朝南,3个卧室分别做到了3.2米/2.8米/2.4米的宽度,L型厨房带1个生活阳台,卫生间干湿分离,得房率73.55%(不含赠送),西南朝向。
94㎡的3房2厅2卫,设计的是竖厅格局,客厅3.4米开间,LDKB一体化设计,3个卧室分别做到了3.1米/2.8米/2.4米的宽度,L型厨房带1个生活阳台,公卫三段式分离,得房率73.71%(不含赠送),有西北、东北或西南朝向。
95㎡的3房2厅2卫,仅3栋1单元01户型,设计的是竖厅双龙抱珠格局,客厅3.4米开间,三开间朝南,3个卧室分别做到了3.2米/2.8米/2.3米的宽度,L型厨房带1个生活阳台,公卫三段式分离,得房率73.71%(不含赠送),西南朝向。
97㎡的3房2厅2卫,仅3栋4单元01户型,设计的是竖厅双龙抱珠格局,客厅3.4米开间,三开间朝南,3个卧室分别做到了3.2米/2.8米/255米的宽度,L型厨房带1个生活阳台,公卫三段式分离,得房率73.61%(不含赠送),东南朝向。
110㎡的3房2厅2卫,设计的是横厅大开间格局,客厅5.8米开间,南北通透双阳台,三开间朝南,3个卧室分别做到了3.4米/2.9米/2.6米的宽度,U型厨房,公卫三段式分离,得房率73.71%(不含赠送),阳台主朝西南或东南向。
120㎡的4房2厅2卫,仅3栋5单元01户型,设计的是创新式双龙抱珠格局,L型厨房,公卫三段式分离,得房率74.13%(不含赠送),东南朝向。
项目总占地面积约3.07万㎡,总建筑面积约33.83万㎡,分2个地块开发。
其中A635-0259地块,总占地面积约2.24万㎡,总建筑面积约24.94万㎡,计容建筑面积约18.23万㎡,容积率7.58,绿化率40.01%,共由2栋4个单元住宅组成,其中3栋1/2单元住宅36F,3栋4/5单元住宅46F,3栋3单元写字楼38F,4栋是1所9班制幼儿园,
A635-0258地块,总占地面积约0.83万㎡,总建筑面积约8.89万㎡,计容建筑面积约6.06万㎡,容积率7.04,其中2栋人才房38F,1栋写字楼22F。
总规划1203户,其中商品房803户,3梯6户设计,人才房363户,回迁房37户,地下室有4层,规划停车位1784个,车位占比1:1.48。
如果对我们楼盘感兴趣,营销中心预约热线,来电预约可享内部优惠与保留房源(物 业 管 理 费 家 电 礼 包 赠 送 和 购 房 补 贴)请认准我们售楼中心电话/预约热线:400-992-0669 中介勿扰
项目周边配套信息介绍
学校配套:项目自带有1所9班制幼儿园,东北面规划有1所18班小学,根据2024年光明区教育局学区划分,小学学区划分在公明第一小学、公明第二小学、合水口实验学校小学部、东宝纪念小学、宝滨小学、明达小学、深圳教科院实验小学(光明),初中学区划分在公明中学、合水口实验学校初中部。
在2024年的学校录取积分中,除了深圳教科院实验小学(光明)录取积分是第四类62.25分,其它学校都是第八类录取,包括公明中学也仅第八类29.5分,按照光明的学校录取积分政策,第八类属于非深户学区租房,所以由此也能看出该片区的学校生源是比较宽松的。
交通配套:毗邻主干道松白路,周边双地铁口,6号地铁线红花山站距离约700米,6/13号地铁线公明广场站距离约500米,4站到凤凰城,6站到石岩上屋,11站到西丽留仙洞。
深圳13号线作为光明区的生命线,也是深圳3条快线之一,设计时速120公里,纵贯宝安区、光明区、南山区,将重新定位光明科学城通往南山核心区域的距离,其中一期已经在空载试运行,二期计划在2025年开通。
项目自带底商,步行即可抵达大型商业综合体光明大仟里购物中心、希尔顿花园酒店。800米范围内还有天虹商场、百佳华商场等购物中心,满足了居民的日常购物需求。

项目联袂知名设计团队,聚集大师非凡造诣,雕琢建筑以及空间的每一处细节,以前沿审美,重塑城市界面。
约177米地标高度,重塑城市主轴悦见公园里以“云卷云舒”设计概念,整体挺拔伸展,营造出高级、大气的建筑气质。约177米城市综合体高度,屹立城市主干道旁,创造了一个动态的城市新地标。
深圳宏发悦见公园里售楼处电话:400-992-0669【售楼中心】
宏发悦见公园里营销中心电话:400-992-0669【营销中心】
提前预约售楼处看房,可享受线上预约折扣,一对一专属置业顾问服务。
楼盘详情介绍(楼盘项目怎么样?多少钱一平?什么时候交楼?有什么户型?周边有什么学校?物业费多少?),想了解更详细楼盘资料和最新折扣价格,请拨打售楼处电话400-992-0669,销售会为您详细介绍。
免责声明:部分信息来源于网络,如果侵权,请联系及时删除,联系电话:400-992-0669
声明:本文由入驻焦点开放平台的作者撰写,除焦点官方账号外,观点仅代表作者本人,不代表焦点立场。
