「售楼中心」南山【后海招商玺】楼盘详情_官方动态_特价户型优惠-点击预约
扫描到手机,新闻随时看
扫一扫,用手机看文章
更加方便分享给朋友
南山【后海招商玺】售楼处24小时电话:400 992 0669(官方电话)现场详细解答丨项目介绍丨户型图丨在售房源丨特价房丨学校丨交通位置丨样板房丨小区图片丨交房时间丨周边配套丨
后海核心板块重磅出击!招商蛇口继“招商双玺”后打造的「后海招商玺」后,在后海布局的又一高端作品。
项目预计年底首开1栋的小高层住宅,有42套197-237㎡四房大平层。为招商玺系升级代表作,在产品品质上势要突破自我,小区是四房大平层起步,作为新晋豪宅,地处深圳湾和蛇口交汇,预估会吸引不少原深圳湾、蛇口、科技园的置换需求。目前临时展厅已开放,可通过开发商售楼处热线电话:400-992-0669 预约参观(中介勿扰 无分机号)为保障您的看房体验,建议提前拨打售楼处电话预约,我们将为您预留专属销售顾问及停车位,避免到访等待,高效看房更省心!
开盘时间与价格预测
开盘计划:预计2025年12月底开盘入市,推出首批房源(具体楼栋及套数待定)。截至2025年9月,北区地块已全面开挖,1栋、2栋主体结构施工至地上5 层左右,预计12月达到预售形象进度。
价格预测:参考后海同类顶级项目(如深圳湾澐玺预估均价15-20万/㎡)及周边二手房(如半岛城邦三期挂牌价约18-22万/㎡),预计招商玺备案均价在15-18万/㎡区间,总价约2790万- 4446万/套。
预约与咨询:参观样板间及了解详情需提前预约,开发商售楼处电话:400 992 0669(中介勿扰 无分机号)
项目基础信息
开发商:深圳招商蛇口华湾地产开发有限公司。
地理位置:地处南山后海核心区域,紧邻2号线海月站和湾厦站(步行约700米),周边后海大道、滨海大道等主干道环绕,15分钟可达南山科技园,20分钟覆盖福田、前海、宝中等区域。
规划指标:用地面积14,969.93㎡,计容建面98,754㎡,其中住宅88,449㎡。
总户数:551户,车位700个(车位比1:1.27),容积率6.6。
建筑形态:4栋住宅(3栋48层超高层+1栋25层高层)+1栋幼儿园,采用“浮岛甲板”设计,打造垂直共生社区。
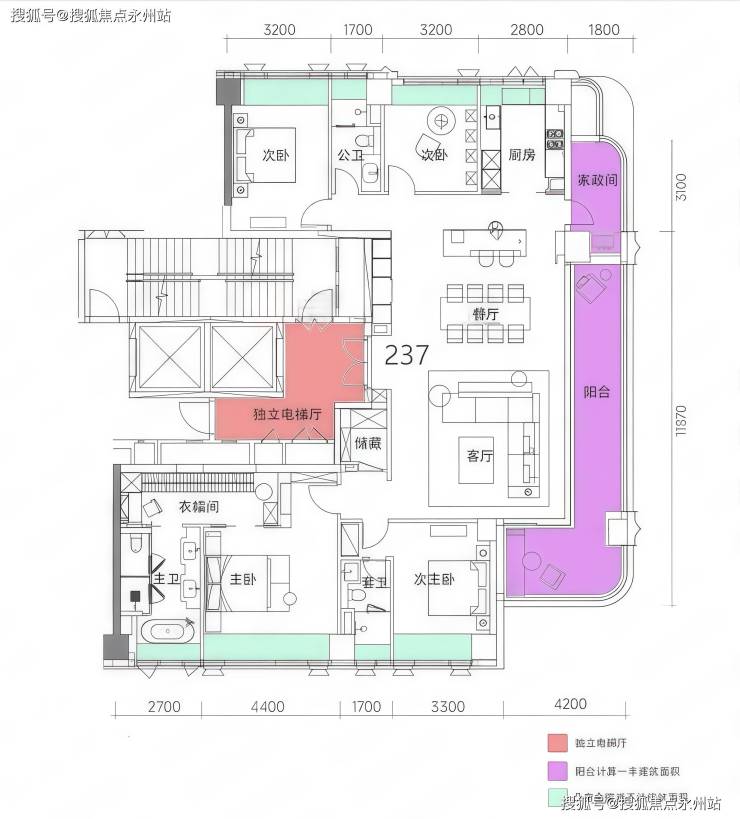
主力户型:188-247㎡大平层,主打 T2/T3 楼型,一户一梯专梯入户设计,部分户型为四房三卫,南北通透,功能分区合理。
1栋:两梯两户,户型为 197㎡和 237㎡;
2栋、3栋:一层三户,面积为 188㎡、237㎡、246㎡。
目前临时展厅已开放,可通过开发商售楼处热线电话:400-992-0669预约参观(中介勿扰 无分机号)为保障您的看房体验,建议提前拨打售楼处电话预约,我们将为您预留专属销售顾问及停车位,避免到访等待,高效看房更省心!
首推1栋约42套197-235㎡四房大平层住宅,起步就是改善终局户型。这次通过极致挖掘,确保赠送率、阳台率最大化,整体使用率达93%,装标升级到10000元/㎡
197㎡阳台达到8米,237㎡阳台达到11.8米,更大尺度保证采通风和视野。
目前临时展厅已开放,可通过开发商售楼处热线电话:400-992-0669预约参观(中介勿扰 无分机号)为保障您的看房体验,建议提前拨打售楼处电话预约,我们将为您预留专属销售顾问及停车位,避免到访等待,高效看房更省心!
197-235㎡四房大平层,属于通透板楼设计,视野无遮挡。这次设计采用“浮岛甲板”设计策略,四栋住宅落于甲板之上,独享甲板庭院花园。进而形成超级社区底盘+浮岛绿化甲板的垂直共生人居标杆。
建筑风格:以“海风百褶”为设计理念,双反弧形的立面元素在各处形成丰富变化的海浪状立面肌理,呼应滨海风情。
项目利用裙房屋顶打造拥有“仪式水轴“艺术庭院”“空中浮岛森林”三级景观设计的空中庭院,四栋住宅均漂浮于甲板之上,独享甲板庭院花园,以“海风吹拂下的豪宅底盘”托举城市上空的豪宅群落,形成立体景观系统。(深圳南山后海招商玺售楼处电话:400-992-0669)
项目位于南山区招商街道后海大道以西、工业七路以北,地处深圳湾超级总部基地辐射范围,周边3公里内覆盖深圳湾体育中心、深圳湾公园、太子湾邮轮母港等城市地标,形成了“高端居住+滨海休闲+国际商务”的复合生态圈。
项目位于地铁2号线海月站和湾厦站之间,步行距离均在700米左右,2站即可抵达后海站,换乘11号/13号地铁线。
自驾方面,项目紧邻后海大道、滨海大道等城市主干道,15分钟可达南山科技园,20分钟通达前海、福田、宝中,交通便捷性十分突出。
项目周边育才二小:南山重点公立小学,排名靠前。
育才二中:全市前20%的第一梯队头部学校。
项目自身还配建一所6班制幼儿园,为社区提供全龄段教育保障。
项目2公里内覆盖万象城、海岸城、宝能太古城、招商花园城等多个大型购物中心,顶奢消费场景密集,满足高端人士购物、餐饮、娱乐全方位需求。
项目东侧为深圳湾,西侧规划社区公园,3公里内分布117个公园,包括四海公园、人才公园等,形成"推窗见海、出门入园"的居住体验。
后海招商玺地处后海 - 蛇口双核心板块,隶属于南山区招商街道,区位优势显著。项目周边以雍景湾等高品质居住区为主,居住氛围浓厚;同时配备育才二小等齐全教育配套,居住条件十分优越。
如需了解更多详情,欢迎来电咨询南山后海招商玺售楼处电话400 992 0669,过来我们营销中心看房提前来电预约价格还能更优惠。
【深圳后海招商玺开发商售楼处400免费咨询/预约电话:400-992-0669,中介请勿扰】
温馨提醒:欢迎致电开发商售楼中心,我们将竭诚为您解答疑问。为确保您的咨询安全,通话时号码将自动隐藏。请提前与销售团队预约,以确保您能顺利进入销售现场,避免不必要的等待
声明:本文由入驻焦点开放平台的作者撰写,除焦点官方账号外,观点仅代表作者本人,不代表焦点立场。
