御龙湾西园(售楼处)首页网站#龙华御龙湾西园最新房价#御龙湾西园营销中心欢迎您-周边配套-楼盘详情-备案价
扫描到手机,新闻随时看
扫一扫,用手机看文章
更加方便分享给朋友
位于龙华观澜竹村地铁站【御龙湾西园】计划将于25年8月初入市,首推133套房源,面积有65-75㎡2房1卫,83㎡的3房2卫,95-135㎡4房卫,可以参考附近合正观澜汇新房,备案价格4.96万/㎡,折后均价4.35万/㎡。
本次御龙湾西园预计2房总价230万左右,3房2卫总价预计330万起,4房总价390万起(最终以开发商开盘价格为准),项目预计2026年底带精装交付。
如需了解更多关于我们楼盘最新消息、剩余房源、折扣优惠活动、近期房价走势等情况,欢迎咨询御龙湾西园开发商售楼处咨询/预约电话:400-992-0669(已认证)中介勿扰,过来参观记得提前拨打售楼部400热线进行预约,预约看房价格还可以更优惠,包您满意!
御龙湾西园,由阳基集团打造,总占地面积约4.13万㎡,总建筑面积约31.31万㎡,计容建筑面积约22万㎡,容积率5.32,绿化率30.27%,共由6栋28-32层高的住宅组成,其中1栋3/4单元住宅28F,2栋1/2单元住宅32F,3栋住宅32F,4栋是1所12班制幼儿园。
总规划1292户,其中可售商品房133套,保障房360套,回迁房799套,3梯6户或4梯8户设计,地下室有3层,规划1910个车位,车位占比约1:1.48,不过其中有要分配给到写字楼的。御龙湾西园售楼处_Vip Tel:400-992-0669 中介勿扰
65㎡2房1卫,分布在1栋3/4单元04/05户型,设计的是竖厅稀缺的双龙抱珠格局,客厅开间3米,三开间朝南,L型厨房,卫生间分离设计,得房率约73.26%(不含赠送),西南朝向,加上赠送得房率约80%。
65㎡2房1卫,分布在1栋3/4单元02/07户型,设计的是竖厅稀缺的双龙抱珠格局,客厅开间3米,三开间朝南,L型厨房,卫生间分离设计,得房率约73.26%(不含赠送),东南或西北朝向,加上赠送得房率约79%。
75㎡2房1卫,分布在1栋3/4单元01/08户型,设计的是竖厅稀缺的双龙抱珠格局,客厅开间3.4米,U型厨房,卫生间三段式分离设计,得房率约73.26%(不含赠送),东南或西北朝向,加上赠送得房率约80%。
75㎡2房1卫,分布在1栋3/4单元03/06户型,设计的是竖厅稀缺的双龙抱珠格局,客厅开间3.4米,U型厨房,卫生间三段式分离设计,得房率约73.26%(不含赠送),东南或西北朝向,加上赠送得房率约80%。
83㎡3房2卫,分布在2栋1/2单元02/05户型,设计的是竖厅格局,客厅开间3.3米,LDKB一体化设计,三开间朝南,U型厨房,公卫三段式分离设计,得房率约79.25%(不含赠送),东南或西南朝向,加上赠送得房率约90%。
83㎡3房2卫,分布在2栋2单元03/04户型,设计的是竖厅格局,客厅开间3.3米,LDKB一体化设计,三开间朝南,U型厨房,公卫三段式分离设计,得房率约79.25%(不含赠送),东南或西南朝向,加上赠送得房率约89%。
95㎡4房2卫,分布在2栋1单元06户型,设计的是竖厅南北通透格局,客厅开间3.5米,五开间朝南,U型厨房,公卫三段式分离设计,得房率约79.25%(不含赠送),阳台主朝东北向,加上赠送得房率约93%。
95㎡4房2卫,分布在2栋1单元/3栋03/04户型,设计的是经典竖厅格局,客厅开间3.5米,LDKB一体化设计,三开间朝南,U型厨房,卫生间干湿分离设计,得房率约79.25%(不含赠送),东南或西南朝向,加上赠送得房率约88%。
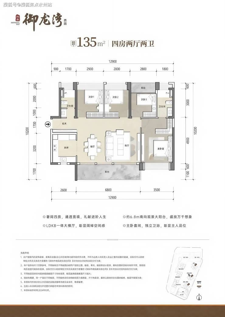
135㎡4房2卫,设计的是横厅南北通透格局,客餐厅开间6.8米,LDKB一体化设计,四开间朝南,U型厨房,公卫三段式分离设计,得房率约79.25%(不含赠送),阳台主朝东南或西南向,加上赠送得房率约90%。
御龙湾西园,位于深圳市龙华区福城街道观澜大道与翠幽路交汇处东南侧,是龙华区数字经济圈与观澜河生态走廊交汇处的稀缺地块。
项目紧邻地铁4号线竹村站,是观澜方向进入龙华区的首站,交通区位优越。南向直线距离仅数百米即达观澜河湿地公园,可享受河景资源和生态休闲空间。
总占地面积约 8.55 万㎡,总建筑面积约 38.79 万㎡,分两期开发,综合容积率 4.53。御龙湾西园售楼处_Vip Tel:400-992-0669 中介勿扰
项目所在的福城街道是龙华区"智慧未来城市先导区"的核心区域,依托观澜河生态走廊和轨道交通优势,打造高品质生活空间。
同时,福城街道作为深圳唯一汇聚华为和富士康两大世界500强企业的街道,产业基础雄厚,为居住者提供了丰富的就业机会和便利的通勤条件。
御龙湾西园所在的福城街道以数字经济、先进制造业和新能源产业为核心,已形成完整的产业生态。
如需了解更多关于我们楼盘最新消息、剩余房源、折扣优惠活动、近期房价走势等情况,欢迎咨询御龙湾西园开发商售楼处咨询/预约电话:400-992-0669(已认证)中介勿扰,过来参观记得提前拨打售楼部400热线进行预约,预约看房价格还可以更优惠,包您满意!
项目周边配套设施
交通配套:御龙湾西园紧邻地铁4号线竹村站,是观澜方向进入龙华区的首站,可便捷连接福田口岸、深圳北站等核心区域。根据最新运营数据,4号线工作日高峰间隔6分钟,平峰间隔6分钟,全天运营时间为06:36-23:54,为居民提供高效便捷的轨道交通服务。
公交配套方面,竹村站附近有40余条公交线路,包括B916路(福安雅园总站-清湖地铁站)、M226路(新斜山社区公园-观澜长坑村)、M424路(光明白花洞总站-龙华文化广场临时公交场站)等,覆盖龙华核心区、观澜及光明区,票价1-2元,服务时间06:30-22:00,满足日常通勤和休闲出行需求。其中,B916路可直达清湖地铁站,与4号线实现无缝衔接,是连接竹村站与清湖站的重要公交线路。
自驾交通方面,项目周边路网发达,可快速接入沈海高速(G15)、观澜大道等主干道。梅观高速清湖南段市政化改造已完工,双向14车道(主道8车道+辅道6车道)大幅提升通行效率,减少跨区拥堵。同时,福城街道正积极推进"工业上楼"计划和老旧园区改造,未来还将接入规划中的地铁27号线支线,进一步完善区域交通网络,提升出行便利性。
学校配套:配建1所12班制幼儿园,为社区提供基础教育配套。幼儿园位于项目内,预计2026年随项目交付同步启用,将为业主子女提供便捷的学前教育服务。
在中小学教育资源方面,项目所在社区(丹湖社区、新和社区、四和社区)属于龙华区外国语学校教育集团福城校区学区范围。福城校区于2020年投入使用,是龙华区属首个外国语教育集团,本部校区2020年第一批中考总均分、400分以上比例均位居龙华第一。此外,项目周边还有观澜第二小学、龙华第三外国语小学、观澜第二中学等多所公立学校环绕,步行3公里范围内可触达12所公立学校。
商业配套:自带约4.89万㎡商业配套,包括邻里商业中心和街区商业MALL,未来将与地铁4号线竹村站实现无缝连接,打造便捷的社区商业体验。项目周边商业资源丰富,合正观澜汇天虹购物中心已开业,面积约6.7万㎡,引进天虹space超市、电影院、健身房、餐饮、零售、儿童教育、乐园等多种业态,拥有3大个性化主题街区和100多个娱乐项目,是区域核心商业体。
项目南侧紧邻观澜河湿地公园,拥有一线临河景观资源,风景秀丽,是区域内稀缺的生态型社区137。观澜河水质近年来持续改善,2024 年国考企坪断面连续四年稳定达 Ⅲ 类水质,优良河长比例提升至 75.1%9。此外,周边 3 公里范围内有龙华公园、羊台山森林公园等多个公园,为居民提供了丰富的休闲娱乐空间。
御龙湾西园凭借地铁口、临河景观、优质教育和政策规划等多重优势,具备较高的区域价值。对于注重交通便利性、生态环境和长期增值潜力的购房者来说,是一个值得关注的项目。然而,短期内周边环境待改善、高容积率等因素可能影响居住体验,需根据个人需求综合权衡。建议实地考察项目进度和周边环境,结合自身预算和长期规划做出决策。
如需了解更多详情,欢迎咨询御龙湾西园售楼处电话400-992-0669,过来我们营销中心看房提前来电预约价格还能更优惠。
龙华御龙湾西园售楼处400免费咨询/预约电话:400-992-0669,中介勿扰
温馨提醒:欢迎致电开发商售楼中心,我们将竭诚为您解答疑问。为确保您的咨询安全,通话时号码将自动隐藏。请提前与销售团队预约,以确保您能顺利进入销售现场,避免不必要的等待。
声明:本文由入驻焦点开放平台的作者撰写,除焦点官方账号外,观点仅代表作者本人,不代表焦点立场。
