荔源雅苑(售楼处)首页网站#南山荔源雅苑最新房价#荔源雅苑营销中心欢迎您-周边配套-楼盘详情-备案价
扫描到手机,新闻随时看
扫一扫,用手机看文章
更加方便分享给朋友
南山现房《荔源雅苑》已取证!50㎡两房折后总价309万起,首付62万起,低总价入住南山最近的机会,项目带精装修交付,基本拎包入住,现楼发售,今年买、今年住!开盘当天所有折扣优惠下来约9折,折后均价6.54万/㎡,折后单价6.13-7.15万/㎡,总价309-836万/套,在2024年12月底前精装交付,目前已经是准现房。荔源雅苑_售楼处_Vip Tel:400-992-0669 中介勿扰
对于深圳刚需客户来说,如果预算350万-600万左右,想在南山区买房,荔源雅苑是个不错的选择,虽然地段和环境一般,但毕竟是核心区,好过于买到龙华光明宝安或龙岗等一些远郊区域。
《荔源雅苑》位于南山区南头同乐片区中山园路与铁二路交汇处,项目东侧紧挨着同乐实验学校,西侧是同乐物联网产业综合基地,南侧是近期入市的安居房同乐馨苑。
从大区位来看,荔源雅苑位居宝安区跟南山区交界处,西侧是宝安中心区,北侧是南山TCL科学园国际E城,东侧是西丽交通枢纽,深圳超级总部基地,南侧是南山中心区。

区域介绍
5大总部基地环绕地段太稀缺,但再经过几年的深度开发,南山就会供应缺失,出现几乎无宅地可供、新盘小户型更是稀缺的情况。
科技园,整个中国高新技术企业最多、地均产值最高的科创中心,多个技术领域达到世界先进水平,培育出了腾讯、华为、中兴、大疆等众多高科技龙头企业,并孵育出柔宇科技、菜鸟网络等一批独角兽企业,被誉为“中国硅谷”。
是带动南山成为深圳最强中心的核心力量,更为深圳GDP反超香港,晋升一线大都市立下了汗马功劳。
前海,国家级自贸区,已有359家世界500强落户;后海-深圳湾区域,中国总部企业最为密集的地方之一,聚集了腾讯、阿里、百度等互联网巨头;西丽留仙洞,深圳蓄势待发的新晋总部基地,未来将形成超3000亿元的产业集群。
被实力如此强大的5大总部基地环绕,荔源雅苑所在的区域,不仅能享受后海、深圳湾、科技园非常成熟的产业、配套红利,还能享受前海、西丽进一步起飞的发展红利,这种地段的楼盘卖一个少一个,稀缺性非常明显。

荔源雅苑,总占地面积约0.63万㎡,总建筑面积约3.36万㎡,计容建筑面积约2.33万㎡,容积率3.52,绿化率40.04%,共由2栋住宅组成,其中1栋A座住宅30F,1栋B座住宅28F。
总规划322套,全是商品房住宅,地下2层,停车位240个,其中充电桩111个,车位占比1:0.75。
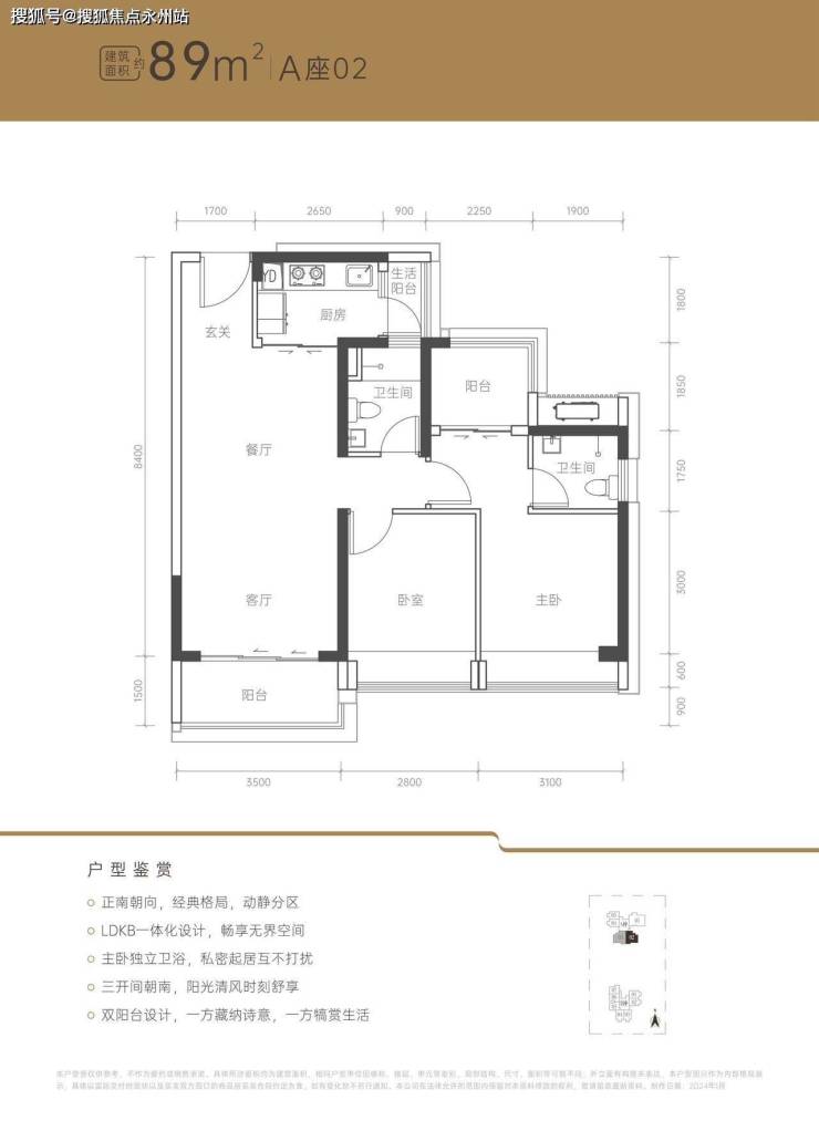
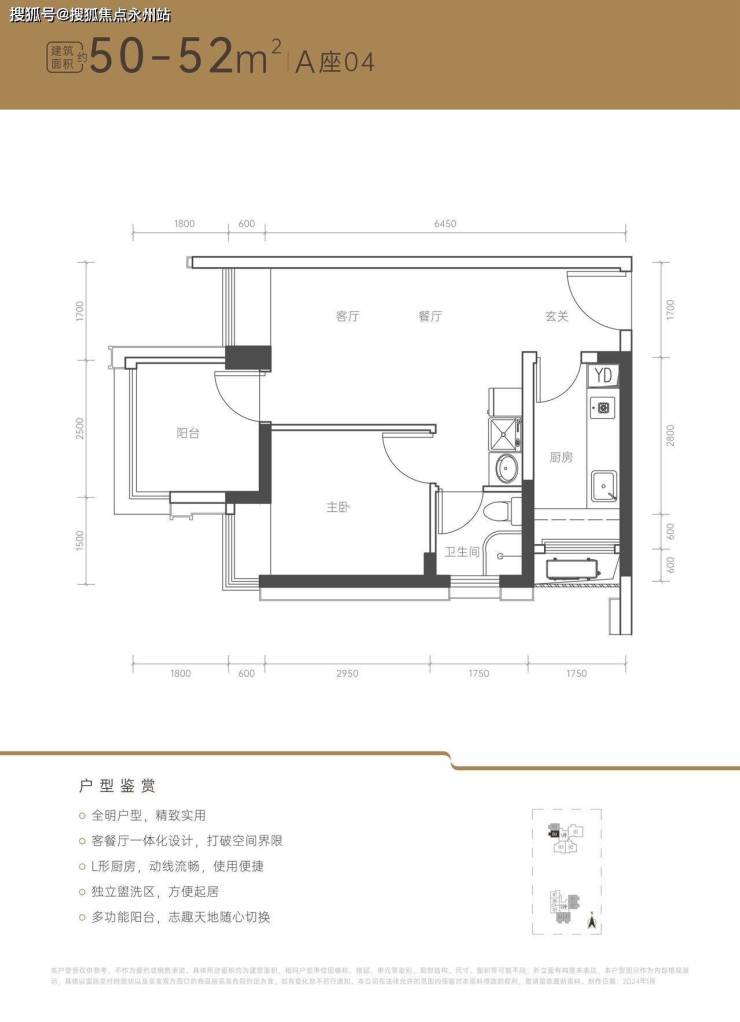
户型为50㎡2房2厅1卫、89㎡3房2厅2卫、117㎡4房2厅2卫。89㎡南向看园景,117㎡四房南北通透。
如需了解更多详情,欢迎咨询荔源雅苑开发商售楼处咨询/预约电话:400-992-0669(中介勿扰),过来我们营销中心看房提前来电预约,而且最终的价格还能享受更多优惠。

项目于2024年6月28日取证入市,推出251套房源,面积50㎡的1房1卫,89㎡的3房2卫,117㎡的4房2卫户型,主要还是以小户型为主,备案均价7.26万/㎡,备案单价6.81-7.95万/㎡,总价343-929万/套,折后均价6.54万/㎡,折后单价6.13-7.15万/㎡,总价309-836万/套,并且还赠送全屋空调+品牌冰箱+厨房大礼包,2024年12月底前精装交付,目前已经是准现房。
50㎡的1房1厅1卫,折后总价309-335万/套,单价6.21-6.73万/㎡。
89㎡的3房2厅2卫,折后总价589-636万/套,单价6.58-7.08万/㎡。
114㎡的4房2厅2卫,折后总价741-836万/套,单价6.44-7.15万/㎡。
50㎡-52㎡2房2厅1卫:阳台可改成卧室,竖厅格局,客餐厅一体,客厅3米开间,2个卧室分别做到了2.7米/2.5米的宽度,小两房户型,总价低,适合刚需上车客户。户型亮点:全明户型,客厅带飘窗,三分离卫浴,无过道零空间浪费。折后总价309-335万/套,单价6.21-6.73万/㎡。
89㎡2+1房2厅1卫:阳台可改卧室,竖厅格局,客厅3.5米开间,客厅及两个卧室均朝南,采光很好,卧室分别做到了3.1米/2.8米的宽度,阳台正南朝向。户型亮点:三开间正南朝向,LDKB一体化设计,动静分区。折后总价589-636万/套,单价6.58-7.08万/㎡。
117㎡3+1房2厅2卫:竖厅南北通透格局,客厅3.6米开间,四开间朝南,4个卧室分别做到了3.2米/2.9米/2.6米/2.4米的宽度,阳台主朝正北向。户型亮点:南北通透,中心楼王公园景观,三开间朝南,端头位且独门独户,卧室均带飘窗。折后总价741-836万/套,单价6.44-7.15万/㎡。
项目周边配套
荔源雅苑距离12号线同乐南站900米距离,还有建设中的15号线同乐关站双地铁口物业,贯穿前海、后海、南山、宝安等重要片区,环经济发展核心区域。可以快速通达宝安中心区,南山高新园,深圳超级总部基地,前海自贸区。周边还有南坪快速,南山大道,北环大道,京港澳高速等交通要道,出行便捷。

约1万㎡隆尚Minitown(招商中)、海雅缤纷城、沃尔玛、西丽约8万㎡云城万科里,立润富达自带4万平商业,附近5公里范围内大型商超有:中洲购物中心、壹方城购物中心、海雅缤纷城、华润城万象天地、天虹超市等等。

家门口一站式优质教育,目送式书香学府小学&初中:教科院同乐实验学校(直线距离约100m),南山首个教科院系实验学校&九年一贯制学校;
教科院:深圳市教育局直属公益一类事业单位,曾打造南山第二外国语学校。
涵养人文书香:临近南山首个教科院系实验学校、九年一贯制——南山教科院同乐实验学校,领航精英未来。
楼下规划公园绿地(约2.5万㎡)、铁路文化公园(直线约300m)、新安公园、中山公园,城市绿氧触手可及周边有中山公园、荷兰花卉小镇,南头古城、南山文体中心、南山图书馆、前海花卉公园、双界河公园等绿意环绕,畅享城市与自然间的从容生活
中山公园:建于1925年,深圳历史最悠久城市公园,拥有49万平方米占地、32棵上百年古树名木、6万平疏林草地、3万平人工湖区。
附近有南山文体中心、南山博物馆、南山图书馆等配套加持,给居者带来多样化的生活选择。直线距离约1.1公里有荷兰花卉小镇,约1.3公里有荔香公园,生态环境非常不错。

文化地标:千年南头古城,粤港文化新地标
以1700年古城文化。2019年南头古城焕新,将文化、创意、艺术源头引入,孕育区域蝶变的力量
天赋稀缺 | 公园绿地在城市的占位属于不可再生资源,城市开发使得可用性土地减少,也让公园地产倍显弥珍。
宜居属性 | 举步即至中山公园,有如业主休闲、游憩的私家后花园。公园植被造就富氧生活圈,为塔尖人士创造“住在公园”的乐活人生。
如需了解更多本项目信息,请拨打售楼处电话,现场销售会为您详细介绍楼盘。
荔源雅苑_开发商售楼处_Vip Tel:400-992-0669 (中介勿扰)
(更多项目动态| 欢迎来电咨询 | 请提前预约登记看房 | 1:1销售专业讲解)置业顾问一对一对接,来电尊享受额外优惠
*特别提示:本宣传资料所涉宣传内容,仅作为项目宣传推广使用,不在任何意义上构成开发商的承诺与要约,具体以政府部门审定的规划设计文件及商品房买卖合同的约定为准。本公司有权对宣传内容进行修改、调整,敬请留意最新宣传资料。
声明:本文由入驻焦点开放平台的作者撰写,除焦点官方账号外,观点仅代表作者本人,不代表焦点立场。
