松茂御城二期(深圳)光明松茂御城二期营销中心欢迎您丨松茂御城二期楼盘详情
扫描到手机,新闻随时看
扫一扫,用手机看文章
更加方便分享给朋友
✨ 松茂御城二期预约通道开启,已认证,安全无忧咨询热线 ✨
✅松茂御城二期售楼处丨开发商丨营销中心统一热线:400-992-0669(全程认证,无分机号)
✅ 通话自动隐藏号码,保护个人隐私,谨防非渠道诈骗
光明松茂御城二期最新价格、楼盘详情及加推信息解析!
光明【松茂御城2期】已取证入市,同时正式开放实体园林跟实体样板房,计划于9月7日(周日)开盘选房!
松茂御城二期当前主推房源为81-135㎡三至五房,项目备案均价4.42万/m²,备案单价3.79-5.09万/m²,总价在304-685万/套,折后单价低至3.2万/㎡起,总价280 万起!
交付时间:预计在2027年2月份带精装交付,不过合同约定是在2026年底,是为了保证26年业主们申请学位问题,另付送装修协议到27年2月份。
Vip Tel:400 992 0669【中介勿扰】
项目位于广深港科创走廊重要节点的“世界一流科学城”光明,归属凤凰城街道,邻建面约383万㎡13号线重点城市更新单元(在建),占位光明城市发展的“价值洼地”,同享磅礴产业规划红利。
13号线重点更新项目(在建),总投资约420亿元,其体量约为光明城站TOD的25倍。将结合13号线月亮路站塑造、城市蓝绿公园网络提升、产城空间更新,无限链接生产、生活、生态要素,建设成光明区“三生融合示范区”。
目前一期产业约36万㎡已竣备完工,预计2025年内交付,深实验光明明湖学校2025年已正式招生办学;凤凰文体中心等已立项,高规格城市配套正逐步兑现。(深圳光明松茂御城售楼处电话:400 992 0669)
项目位于光明区凤凰街道塘尾社区松白路与碧塘路交汇处,总占地面积45352.06㎡,总建筑面积297781.48㎡,规划建设13座高层建筑,采用‘‘围合式’’建筑布局。项目共2126户,车位数2321个,布置有一至二层商业及公共配套,是集住宅、公寓、商业于一体的宜居纯粹性项目。
该项目位于地铁13号线月亮路旁,目前还是双名校深实验+深中学区,还有光明本地名校光明实验,一期已经是现楼,二期估计26年底左右可以交楼。(深圳光明松茂御城售楼处电话:400 992 0669)
项目二期房源为81-135㎡三至五房,得房率高,部分户型可改四房,如89㎡四房二卫。得房率最高达100%,部分户型赠送面积较多。
价格:备案均价约4.42万/㎡,折后均价约3.46万/㎡起,总价280万起。工抵房价格更低,约3.2万/㎡。
楼栋:二期由8栋31-32层住宅组成,梯户比2梯4-6户,容积率4.55,绿化率40%。准现房,交房时间早(2026年9月),户型实用,教育资源丰富(深中、深实验分校),周边规划有大型商业和公园。
建面约81-135㎡三至五房,满足多元居住需求,松茂御城二期深研城市家庭居住痛点,以多元优质户型重构空间价值,从二人世界到三代同堂,让每一种生活理想都能从容安放。
约81㎡三房两厅两卫:堪称“空间魔术师”,实现了功能与舒适度的完美平衡,无论是三代共居还是二孩家庭,都能从容舒享。双卫生间设计,空间功能更优越,早晚高峰期不再拥挤,居家生活更高效。主卧独立套房,精巧三房也能私享私密与尊崇,满足年轻家庭对品质生活的追求。
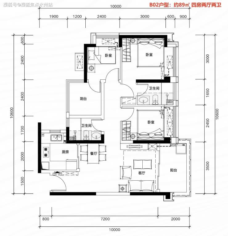
约89㎡四房两厅两卫:突破性实现四房布局,真正做到了“同等面积多一间房”,既保留了客餐厅的开阔尺度,又为二胎家庭或三代同住预留了充足空间,让成长型家庭无需为换房烦恼,一步到位实现“全生命周期居住自由”。
约109㎡四房两厅两卫:阔绰大四房,尺度舒居,二孩家庭或是三代同堂,皆能各得其乐,是精英家庭一步到位的理想之选。部分独立入户,营造归家仪式感,主卧套房带衣帽间,尽显宽居气度。
约135㎡五房两厅两卫:四开间朝南,将约2万㎡园林景观尽收眼底,双阳台与方正户型设计,让大宅生活的尊崇与舒适淋漓展现。
约2万㎡全龄互动大园林,一座自然生长的“度假公园”。
园林以“水岸绿洲”为蓝本,引水为邻诗意栖居,园内配备约410㎡亲子双泳池,下楼即享悠然度假;约300米元气跑道,把健身房搬进自然中,林涧廊亭与光影水院,为久处喧嚣的人提供一方静谧清幽,约6500㎡三层屋顶花园与双层架空会所,配备儿童益智空间、青年运动场、长者休闲区等,打造“邻里社交厅”,共筑温情社区。
匠心精工,铸造品质人居
外墙甄选高品质铝板,采用先进工艺锻造更加平整、色泽均匀历久弥新的精工品质,赋予建筑奢豪质感。搭配玻璃幕墙式阳台,勾勒简约时尚的建筑艺术,提升人居价值与美学价值。如此豪宅用材精工品质,遍寻光明难觅其二。
交通枢纽:双地铁 + 高速路网构建湾区半小时生活圈
地铁 13 号线通车在即:项目距离在建的地铁13号线月亮路站仅400米,预计2025年12月28日通车后,1站可达光明中心区,9站直达南山科技园,45分钟覆盖深圳湾口岸。远期规划中,13号线将北延至东莞松山湖,与29号线(规划)形成深莞科技创新走廊的黄金节点,强化区域与大湾区其他科创高地的联动。
多维路网无缝衔接:项目紧邻松白路主干道,周边南光、龙大、深圳外环三条免费高速环绕,自驾 30分钟可达宝安国际机场、深圳北站,1小时覆盖大湾区主要城市。光明城站高铁枢纽(3公里)已开通至广州、香港的直达线路,未来还将引入深莞增城际,进一步提升区域通达性深圳市光明区人民政府。
教育资源:名校集群与高成长性教育配套
全龄优质学区覆盖:项目自身配建9班幼儿园,小学学区划分为光明区排名前三的教科院实验小学、秋硕小学,初中学区划入深圳中学光明科学城学校二初中部、凤凰城实验学校。周边规划的深圳实验学校塘尾第一学校(54班九年制)将于 2026年秋季开学,提供2520个优质学位,进一步强化教育优势。
高校与科研机构联动:中山大学深圳校区、深圳理工大学等高校已投入使用,深圳医学科学院、深圳湾实验室等科研机构加速集聚,形成"基础教育 + 高等教育 + 科研转化" 的完整链条,为区域注入持续的人才红利。
商业与生活配套:全维度生活场景构建
社区商业与区域商圈互补:项目自带约1.75万㎡商业街(预计2025年下半年开业),满足日常便利需求,3公里范围内覆盖光明大仟里(15万㎡)、蓝鲸世界(10万㎡)、万达广场(6万㎡)三大成熟商圈。此外,13号线车辆段 TOD 片区规划的近6万㎡万象新天地商业,将成为区域消费新地标。
生态与休闲资源密集:项目毗邻 58 万㎡明湖城市公园、7.45 万㎡鹅颈水湿地公园及茅洲河碧道,步行 10 分钟可达多个生态节点,形成 "公园城市" 的宜居环境。未来,塘尾片区还将规划建设 1.2 万㎡市政公园(由松茂集团代建),进一步提升居住舒适度。

松茂御城所在的光明塘尾片区,凭借国家级科学城规划、地铁 13 号线通车、名校集群、TOD 旧改及产业人口导入等多重利好,在 2025 年展现出显著的区域价值。对于刚需购房者,其低总价、高使用率户型及即买即住的现房优势(一期已交付)具备吸引力;对于投资者,科学城的长期发展红利与房价升值空间值得关注。建议重点关注地铁通车后的市场反应及周边旧改进展,把握价值兑现节点。
松茂御城二期以“高得房率 + 准现房 + 低总价”为核心卖点,在光明区刚需及首改市场中竞争力突出。建议意向客户抓住首推折扣窗口期,优先选择中高楼层、南北通透户型,并充分利用人才补贴、首付政策降低购房成本。
如需了解更多详情,欢迎咨询光明松茂御城二期售楼处电话400 992 0669,过来我们营销中心看房提前来电预约价格还能更优惠。
【深圳光明松茂御城开发商售楼处400免费咨询/预约电话:400-992-0669,中介请勿扰】
注意事项:如果对本项目感兴趣,建议您与我们开发商联系,无需中介费,拿最 低价格,还能享额外(物业费+家电)赠送。确保看房体验,暂不接待临时到访,请提前预约。欢迎拨打开发商售楼处预约热线:400 992 0669,中介勿扰
声明:本文由入驻焦点开放平台的作者撰写,除焦点官方账号外,观点仅代表作者本人,不代表焦点立场。
