合泰嘉悦公馆(售楼处)首页网站-合泰嘉悦公馆营销中心-合泰嘉悦公馆欢迎您-合泰嘉悦公馆楼盘详情-最新价格-户型图-容积率@售楼处最新发布
扫描到手机,新闻随时看
扫一扫,用手机看文章
更加方便分享给朋友
✨ 合泰嘉悦公馆售楼中心预约通道开启,已认证,安全无忧咨询热线 ✨
✅ 合泰嘉悦公馆售楼处丨开发商丨营销中心统一热线:400-992-0669(全程认证,无分机号)
✅ 通话自动隐藏号码,保护个人隐私,谨防非渠道诈骗
盐田合泰嘉悦公馆最新价格、户型信息,配套及交付信息,楼盘详情解析!
深圳【合泰·嘉悦公馆】
开发商售楼处电话咨询/预约热线:400-992-0669【售楼中心】24小时热线
盐田沙头角【合泰·嘉悦公馆】售楼处电话:400-992-0669【营销中心】中介勿扰
盐田沙头角【合泰·嘉悦公馆】计划将在2025年8月份取证入市,本次推出1栋174套房源,面积有72-81㎡的3房1卫,88㎡的3房2卫,99㎡的4房2卫户型。
销售形式:采用开发商直销模式,可通过开发商售楼处渠道(400-992-0669)预约看房,暂不接待临时到访,部分房源提供 “团购折上折” 及工抵房特惠,具体优惠可咨询售楼中心。
价格定位丨参考区间:项目备案价尚未正式公布,但综合盐田区2025年新房均价(4.58万/㎡)及周边二手房价格(4.5-5.8万/㎡),预计存在明显价格倒挂空间,大概率贴近区域均价。
户型总价:主力户型72-99㎡三至四房,若按4.5万/㎡测算,总价区间约324万-446 万,低于周边同类型产品,成为片区性价比标杆。
优惠政策丨团购折扣:通过开发商渠道认购可享额外折扣,部分工抵房单价或低至4万/㎡以下。
预约看房享受专属优惠大礼包(赠送物业管理费、赠送家电大礼包、额外购房补贴等)可享折上折优惠
合泰·嘉悦公馆售楼处_Vip Tel:400-992-0669,中介勿扰
实际成交价格可能因楼层、朝向、户型等有所差异,建议购房者提前联系售楼处获取最新优惠信息。
项目由盐田本土开发商,合泰集团打造,分南北区2个地块打造,总占地面积约0.61万㎡,总建筑面积约5万㎡,共由2栋总高31-33层的住宅组成,另外规划1栋写字楼17层。
本次推售的是南区,总占地面积约0.25万㎡,总建筑面积约2.25万㎡,计容建筑面积约1.69万㎡,容积率6.7,绿化率30%,共由1栋31层高的住宅组成,总规划174户,全部都是商品房,3梯6户设计,地下室有3层,规划117个车位,车位比1:0.67。
72㎡的3房2厅1卫,设计的是竖厅格局,客厅3.5米开间,LDKB一体化设计,动静分区,3个卧室分别做到了主卧11.28㎡/次卧8.57㎡/次卧7.76㎡(包含墙体飘窗),客厅出3.78㎡的大阳台,U型厨房5.22平,卫生间干湿分离,得房率约86-90%(包含赠送),正北朝向。
81㎡的3房2厅1卫,设计的是经典竖厅格局,客厅3.5米开间,LDKB一体化设计,三开间朝南,动静分区,3个卧室分别做到了主卧11.29㎡/次卧8.97㎡/次卧7.76㎡(包含墙体飘窗),客厅出8.4㎡的大阳台,U型厨房5平,卫生间干湿分离,得房率约86-90%(包含赠送),正南朝向。
88㎡的3房2厅2卫,设计的是经典竖厅格局,客厅3.6米开间,LDKB一体化设计,三开间朝南,动静分区,3个卧室分别做到了主卧14.26㎡/次卧7.81㎡/次卧5.83㎡(包含墙体飘窗),客厅出8.67㎡的大阳台,U型厨房4.95平,公卫三段式干湿分离,得房率约86-90%(包含赠送),正南朝向。
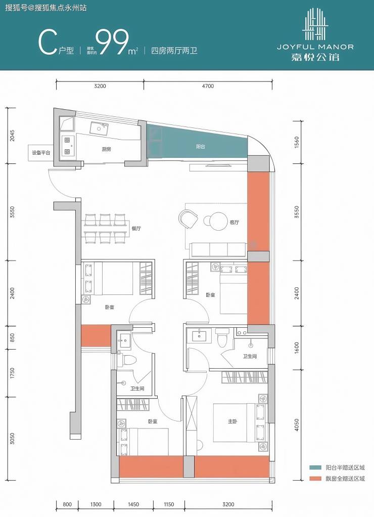
99㎡的4房2厅2卫,设计的是竖厅南北通透格局,客厅3.55米开间,LDKB一体化设计,动静分区,4个卧室分别做到了主卧12.96㎡/次卧7.93㎡/次卧7.7㎡/次卧7.68㎡(包含墙体飘窗),客厅出7.3㎡的阳台,U型厨房6.54平,卫生间干湿分离,得房率约86-90%(包含赠送),阳台主朝北向。
项目以其现代极简美学的设计风格,成为城市中一道亮丽的风景线。外立面精选真石漆、铝板幕墙以及中空LOW-E玻璃,这些高端材料不仅赋予了建筑历久弥新的外观,更提供了卓越的功能性。
中空LOW-E玻璃打造的公建化立面,不仅有效隔音和阻隔紫外线,还为居住者营造了宁静舒适的室内环境。铝板线条的运用,则进一步凸显了建筑的挺拔质感,使其外立面更显精致大气,尽显现代都市建筑的独特魅力。
项目位于盐田区沙头角街道核心区域,紧邻地铁8号线沙头角站C口,步行距离约700米,5分钟可达,背靠梧桐山生态屏障,南眺19.5公里大鹏湾海岸线,部分高楼层户型可享"山海双景",负氧离子浓度常年高于外区60%,空气质量优良率达100%。(深圳盐田合泰嘉悦公馆开发商售楼处电话:400-992-0669)
项目周边配套信息解析
交通配套:盐田嘉悦公馆交通网络发达,实现高效通勤与休闲出行的双重便利。项目邻近地铁8号线沙头角站,步行约700米,1站直达罗湖,9站至福田CBD,早高峰通勤约1小时。地铁站内设有无障碍设施(轮椅停放处、直梯),满足特殊人群出行需求。
自驾可通过坪盐通道30分钟直达福田中心区,东部过境高速15分钟抵达莲塘口岸,盐排高速连接龙岗,全程无拥堵时车程可控。
教育配套:项目自带12班幼儿园,采用蒙台梭利教学体系,计划2025年秋季开园,优先满足业主子女入园需求。
深圳高级中学盐田学校:步行10分钟可达,作为深圳 “四大名校” 分校,2025年秋季正式招生,配备恒温游泳池、网球场等高端设施,师资由本部直接调配。
林园小学:市一级公办小学,步行8分钟即达,特色课程包括海洋文化研学、创客教育,2024年获评“深圳市智慧校园示范校”。
未来教育升级:规划中的54班九年制学校,位于项目东侧,预计2026年建成,将引入国际教育资源,打造“科创+艺术”特色校区。
商业配套:盐田嘉悦公馆商业配套丰富且便捷,满足日常及高端消费需求。最近的大型商业综合体为35万㎡的壹海城ONEMALL,步行约1.3公里,拥有盐田首进品牌(如西西弗书店、万达IMAX影院、meland儿童乐园)、网红餐饮(凑凑火锅、太二酸鱼)及8000㎡华润万家超市,形成"街区+mall"的商业模式。周边还有7万㎡精茂城(进口商品特色)、3万㎡广富百货及海岸商业街,提供多样化的购物选择。
自然生态资源:梧桐山国家森林公园,项目直线距离 1.5 公里,登山步道入口(恩上湿地公园)步行 20 分钟可达,可登顶大梧桐(海拔 943 米)俯瞰深圳湾与香港新界。
盐田滨海栈道:骑行10分钟可达,19.5公里海岸线串联沙头角、大梅沙,2025 年新增“滨海灯光秀”,每晚19:00-22:00 整点亮灯。
合泰·嘉悦公馆以“地铁口+学府+山海”资源为核心优势,构建了“15分钟步行生活圈”:
通勤族:地铁8号线+坪盐通道,30分钟覆盖福田、南山核心商务区。
家庭客群:深圳高级中学等名校环绕,盐田区人民医院提供医疗保障。
山海爱好者:梧桐山、大鹏湾、滨海栈道构成生态闭环,周末可轻松实现登山、观海、骑行三重体验。
尽管沙湖新城等商业配套仍需时间兑现,但项目现房交付、价格倒挂(预计单价 4.5-5.8 万 /㎡)的优势,使其成为2025年盐田楼市“性价比之王”。建议重点关注南地块纯住宅房源,优先锁定中高楼层东南向户型,兼顾采光与景观资源。
如需了解更多详情,欢迎咨询合泰嘉悦公馆售楼处电话400-992-0669,过来我们营销中心看房提前来电预约价格还能更优惠。
盐田合泰·嘉悦公馆售楼处400免费咨询/预约电话:400-992-0669,中介勿扰
温馨提醒:欢迎致电开发商售楼中心,我们将竭诚为您解答疑问。为确保您的咨询安全,通话时号码将自动隐藏。请提前与销售团队预约,以确保您能顺利进入销售现场,避免不必要的等待。
声明:本文由入驻焦点开放平台的作者撰写,除焦点官方账号外,观点仅代表作者本人,不代表焦点立场。
